Как читать архитектурный проект: гайд для новичков на что обратить внимание
Архитектурный проект — это инструкция к вашему будущему дому. Без него строительство похоже на сборку сложного конструктора без схемы. Можно получить результат, совсем не похожий на мечту.
Многие заказчики стесняются признаться, что не понимают чертежи. В результате сталкиваются с сюрпризами уже на стройплощадке: окна не там, розетки за мебелью, комнаты теснее, чем ожидалось.
Основные разделы проекта
Проект состоит из трех ключевых частей. Архитектурный раздел показывает внешний вид и планировку. Конструктивный — скрытые элементы: фундамент, перекрытия, стены. Инженерный — коммуникации: электрику, сантехнику, отопление.
В архитектурном разделе вы найдете:
-
Фасады — как дом выглядит снаружи
-
Планы этажей — расположение комнат
-
Разрезы — высота потолков и особенности конструкции
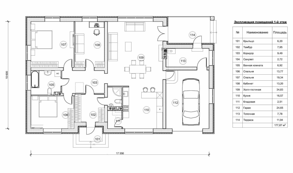
Как читать планы этажей
Планы выполняются в масштабе — обычно 1:100. Это значит, 1 см на бумаге равен 1 метру в реальности. Возьмите линейку и проверьте реальные размеры комнат.
Обратите внимание на:
-
Ширину коридоров (минимум 90 см)
-
Размеры санузлов
-
Расстановку мебели
-
Расположение окон и дверей

Мебель на планах рисуют не для красоты. Это помогает оценить удобство планировки. Проверьте, удобно ли подходить к шкафам, хватит ли места для обеденного стола.
Изучаем фасады и разрезы
Фасады показывают дом с четырех сторон. Оцените сочетание материалов отделки, расположение окон, водосточных труб. Убедитесь, что внешний вид соответствует вашим ожиданиям.
Разрезы — это вид дома в разрезе. Они показывают:
-
Высоту потолков
-
Уклоны кровли
-
Конструкцию лестниц
-
Связь между этажами
Инженерные системы: самое важное
Инженерные разделы самые сложные, но самые важные. Электрика: проверьте расположение розеток у кроватей, выключателей у входов. Убедитесь, что для мощной техники выделены отдельные линии.
Сантехника: обратите внимание на пути прокладки труб. Они не должны проходить через спальни — это создает шум. Убедитесь в доступности труб для обслуживания.
Проверяем согласованность разделов
Частая ошибка — противоречия между разделами. Например, в архитектурном разделе окно есть, а в конструктивном на его месте балка. Или на плане электрики розетка, а на плане стен там шкаф.
Проверьте:
-
Соответствие размеров на всех чертежах
-
Отсутствие конфликтов между системами
-
Единство в изображении проемов
Задавайте вопросы архитектору
Не стесняйтесь спрашивать. Почему выбраны эти материалы? Как будет обслуживаться дом? Достаточно ли утепления? Хороший архитектор оценит вашу вовлеченность.
Избегайте типичных ошибок:
-
Не ограничивайтесь картинками
-
Проверяйте реальные размеры
-
Изучайте инженерные разделы
-
Учитывайте высоту потолков
Попробуйте «прожить» в проекте. Представьте обычный день: как заходите в дом, готовите обед, отдыхаете вечером. Удобно ли всё организовано?
Чтение архитектурного проекта — навык, который быстро развивается. Ваш дом должен быть удобным именно для вас, поэтому ваше участие в изучении проекта необходимо.
Если вы ищете проект с продуманной планировкой, на сайте Стройман.ру на нашем сайте вы найдете более 10 000 домов. Наши специалисты помогут выбрать проект под ваши нужды и запросы.