Проект двухэтажного дома № 202
Дом подходит для:
Площадь
89 м 2
Размер дома:
8x9
Этажей:
2
Спален:
2
Санузел:
2
Гараж:
Нет
Баня:
Нет
Терраса:
Нет
Панорамные окна:
Нет
Мастер-спальня:
Нет
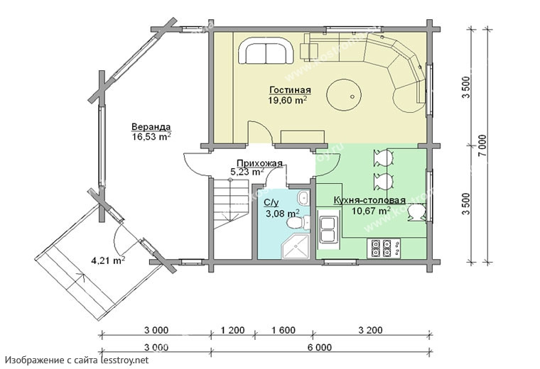
Планировка
Характеристики
- Общая площадь: 89 м2
- Жилая площадь: 71 м2
- Количество этажей: 2
- Гараж: нет
- Площадь кровли: 96 м2
- Форма: Квадратные дома
- Тип кровли: Дома с двускатной крышей
- Пристрой: Дома с балконом
- Отделка: Без отделки
- Размер: 8x9
Материалы и перечень работ
- В стоимость не входит
- Сборка стен сруба на деревянные нагеля (шканты).
- Соединение всех углов — «ласточкин хвост».
- Все перегородки 1 и 2 этаж — брус 100х150 мм и проф бруса 90х140 мм.
- Балки половые и потолочные — брус 100х150 мм.
- Черновые полы — доска 25х100 мм.
- Стропильная система (стропила, ригеля, стойки) – брус 50х150 мм.
- Обрешетка крыши — доска 25х150 мм.
- Покрытие крыши рубероидом.
- В стоимость не входит
- В стоимость не входит
- Межвенцовый утеплитель — джут, льноволокно.
- В стоимость не входит
- Сборка стен сруба на деревянные нагеля (шканты).
- Соединение всех углов — «ласточкин хвост».
- Все перегородки 1 и 2 этаж — брус 100х150 мм и проф бруса 90х140 мм.
- Балки половые и потолочные — брус 100х150 мм.
- Черновые полы — доска 25х100 мм.
- Стропильная система (стропила, ригеля, стойки) – брус 50х150 мм.
- Обрешетка крыши — доска 25х150 мм.
- Покрытие крыши рубероидом.
- В стоимость не входит
- В стоимость не входит
- Межвенцовый утеплитель — джут, льноволокно.
Что еще входит в стоимость:
Отправьте свои контакты и мы расчитаем вам смету
Скорее всего вам подойдут следующие проекты домов:
Дом подходит для:
Дом подходит для:
Дом подходит для:












