Проект одноэтажного дома 11-108
Дом подходит для:
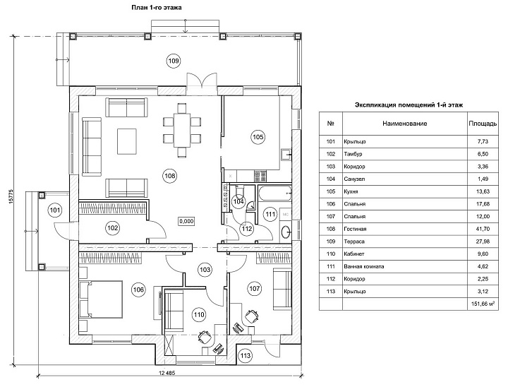
Площадь
108 м 2
Размер дома:
11.7 × 9.3
Этажей:
1
Спален:
3
Санузел:
1
Гараж:
Нет
Баня:
Нет
Терраса:
Нет
Панорамные окна:
Нет
Мастер-спальня:
Нет
Планировка
Характеристики
- Общая площадь: 108 м2
- Жилая площадь: 78 м2
- Количество этажей: 1
- Гараж: нет
- Площадь кровли: 113 м2
- Отделка: Без отделки
- Фундамент: Дома с плитным фундаментом
Материалы и перечень работ
- Ж/б плита 160 мм
- Утепление плиты 50 мм эппс
- Стены внешние 400 мм Газобетон
- Стены несущие 250 мм Газобетон
- Перегородки 150 мм Газобетон
- Армопояс ж/б 200х300 мм
- Армирование кладки каждый 3-й ряд, ж/б перемычки над проемами
- Кровля металлочерепица
- В стоимость не входит
- В стоимость не входит
- В стоимость не входит
- Ж/б плита 160 мм
- Утепление плиты 50 мм эппс
- Стены внешние 400 мм Газобетон
- Стены несущие 250 мм Газобетон
- Перегородки 150 мм Газобетон
- Армопояс ж/б 200х300 мм
- Армирование кладки каждый 3-й ряд, ж/б перемычки над проемами
- Кровля металлочерепица
- В стоимость не входит
- В стоимость не входит
- В стоимость не входит
Что еще входит в стоимость:
Отправьте свои контакты и мы расчитаем вам смету
Скорее всего вам подойдут следующие проекты домов:
Дом подходит для:
Дом подходит для:
Проект одноэтажного дома Печкин
Семья с двумя детьми
Дом подходит для:
Дом подходит для:











