Проект двухэтажного дома 15,3х15,2 - 28С
Площадь
367 м 2
Размер дома:
Этажей:
2
Спален:
4
Санузел:
0
Гараж:
Нет
Баня:
Нет
Терраса:
Нет
Панорамные окна:
Нет
Мастер-спальня:
Нет
О проекте
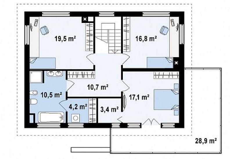
Проект нарисовал дом карандашом современности, раскрасив акварелью жизни. 125 м² — отличная база для воплощения дизайнерских идей. Дом спроектирован в духе дома в классическом стиле. Это двухэтажная структура, которая организует пространство максимально эффективно. Количество спален — 3, делая планировку гибкой.Характеристики
- Общая площадь: 367 м2
- Количество этажей: 2
- Стиль, разновидность: Дома в стиле Кантри
- Форма: Квадратные дома
- Тип кровли: Дома с многощипцовой крышей
- Отделка: Без отделки
Отправьте свои контакты и мы расчитаем вам смету
Скорее всего вам подойдут следующие проекты домов:
Дом подходит для:
Дом подходит для:
Дом подходит для:












