Проект двухэтажного дома 15х14 - 8С
Площадь
308 м 2
Размер дома:
14x15
Этажей:
2
Спален:
4
Санузел:
0
Гараж:
Нет
Баня:
Нет
Терраса:
Нет
Панорамные окна:
Нет
Мастер-спальня:
Нет
О проекте
Архитектурный минимализм как рамка для богатой семейной картиныПлощадь в 137 м² позволяет чувствовать себя свободно. Одноэтажная удобная планировка организует пространство максимально эффективно. Конструкция из каркаса обеспечивает прочность и долговечность. В доме предусмотрено 3 спальни, что важно для комфорта.Характеристики
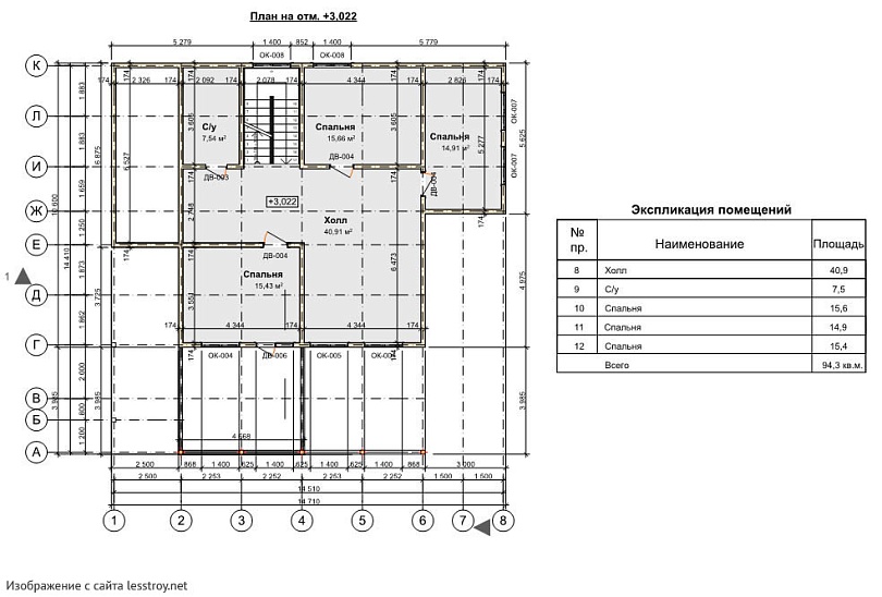
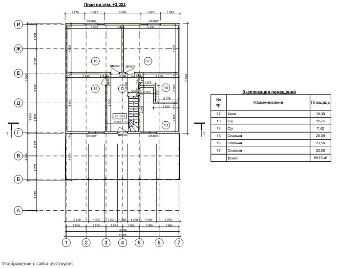
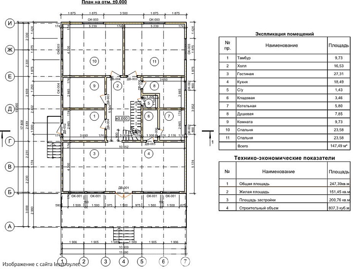
- Общая площадь: 308 м2
- Количество этажей: 2
- Стиль, разновидность: Дома в стиле Модерн
- Форма: Восьмиугольные дома
- Тип кровли: Дома с многощипцовой крышей
- Отделка: Без отделки
- Размер: 14x15
Отправьте свои контакты и мы расчитаем вам смету
Скорее всего вам подойдут следующие проекты домов:
Дом подходит для:
Дом подходит для:









