Проект одноэтажной бани 7x8
Дом подходит для:
Площадь
56 м 2
Размер дома:
7x8
Этажей:
1
Спален:
1
Санузел:
1
Гараж:
Нет
Баня:
Нет
Терраса:
Да
Панорамные окна:
Нет
Мастер-спальня:
Нет
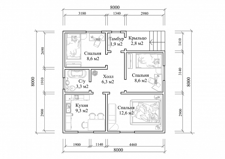
Планировка
Фасады
О проекте
Компактная каркасная баня площадью 56 м² с жилыми 45 м², где атмосфера релаксации сочетается с практичностью. Легкие стены обеспечивают энергоэффективность, а профнастил на крыше придает фасаду современный вид. Небольшие размеры делают баню удобной для отдыха, а продуманная планировка добавляет комфорта. Отличное место для тех, кто ценит простоту и функциональность.Характеристики
- Общая площадь: 56 м2
- Жилая площадь: 45 м2
- Количество этажей: 1
- Гараж: нет
- Площадь кровли: 59 м2
- Форма: Квадратные дома
- Тип кровли: Дома с двускатной крышей
- Пристрой: Дома с верандой
- Отделка: Без отделки
- Отделка фасада: Дома с отделкой имитацией бруса
- Фундамент: Дома с столбчатым фундаментом
Материалы и перечень работ
- Опорные столбы из бетонных блоков высотой 200 мм, на бетонной армированной плитке 400х400х50 мм на песчаной подушке. Гидроизоляция фундамента рубероид в два слоя. Замкнутая нижняя обвязка толщиной 95 мм, ПМК.
- Толщина конструкции 118 мм, гидро-ветроизоляционная мембрана, ПМК, гидро-ветроизоляционная мембрана, черновой пол толщиной 10 мм.
- Утепление пола 1-го этажа 100 мм минеральная вата.
- Настил пола 1-го этажа: Доска пола 21 мм.
- Стены: Толщина конструкции 122 мм. Высота потолка 2,06 м. Обшивка внутри и с наружи 12,5 мм, ПМК, гидро-ветроизоляционная мембрана. Утепление стен до 100 мм.
- Перекрытие 1-го этажа Толщина конструкции 109 мм, ПМК, обшивка 12,5 мм. Утепление 100 мм.
- Оцинкованный профилированный лист. Крепление кровельными саморезами.
- Деревянные распашные окна. Остекление двойное
- Деревянные двери.
- В стоимость не входит
- В стоимость не входит
- Опорные столбы из бетонных блоков высотой 200 мм, на бетонной армированной плитке 400х400х50 мм на песчаной подушке. Гидроизоляция фундамента рубероид в два слоя. Замкнутая нижняя обвязка толщиной 95 мм, ПМК.
- Толщина конструкции 118 мм, гидро-ветроизоляционная мембрана, ПМК, гидро-ветроизоляционная мембрана, черновой пол толщиной 10 мм.
- Утепление пола 1-го этажа 100 мм минеральная вата.
- Настил пола 1-го этажа: Доска пола 21 мм.
- Стены: Толщина конструкции 122 мм. Высота потолка 2,06 м. Обшивка внутри и с наружи 12,5 мм, ПМК, гидро-ветроизоляционная мембрана. Утепление стен до 100 мм.
- Перекрытие 1-го этажа Толщина конструкции 109 мм, ПМК, обшивка 12,5 мм. Утепление 100 мм.
- Оцинкованный профилированный лист. Крепление кровельными саморезами.
- Деревянные распашные окна. Остекление двойное
- Деревянные двери.
- В стоимость не входит
- В стоимость не входит
Что еще входит в стоимость:
Отправьте свои контакты и мы расчитаем вам смету
Скорее всего вам подойдут следующие проекты домов:
Дом подходит для:








