Проект двухэтажного дома 87-61
Площадь
150 м 2
Размер дома:
Этажей:
2
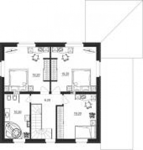
Спален:
4
Санузел:
0
Гараж:
Нет
Баня:
Нет
Терраса:
Нет
Панорамные окна:
Нет
Мастер-спальня:
Нет
О проекте
Архитектура, где форма соответствует назначению. Благодаря 150 м² можно реализовать все бытовые задачи с комфортом. металлочерепица придаёт дому выразительность и надёжность. Проект включает 4 спальни — удобно для семьи. Конструкция из газобетона обеспечивает прочность и долговечность.Характеристики
- Общая площадь: 150 м2
- Количество этажей: 2
- Стиль, разновидность: Дома в ином стиле
- Форма: Прямоугольные дома
- Тип кровли: Дома с многощипцовой крышей
- Отделка: Без отделки
Отправьте свои контакты и мы расчитаем вам смету
Скорее всего вам подойдут следующие проекты домов:
Дом подходит для:
Дом подходит для:
Дом подходит для:








