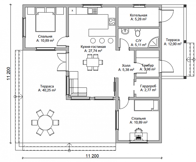
Проект одноэтажного дома Апраксин
Площадь
92 м 2
Размер дома:
9x12
Этажей:
1
Спален:
3
Санузел:
0
Гараж:
Нет
Баня:
Нет
Терраса:
Нет
Панорамные окна:
Нет
Мастер-спальня:
Нет
О проекте
Проект создает стильный экстерьер и функциональные помещения для семейного быта.Суммарная площадь 189 м² создаёт атмосферу простора. Количество спален — 4, делая планировку гибкой. Двухэтажная грамотная планировка создаёт идеальные условия для жизни всей семьи. В качестве кровли использована рубероид — материал, проверенный временем.Характеристики
- Общая площадь: 92 м2
- Количество этажей: 1
- Стиль, разновидность: Финские дома
- Форма: Прямоугольные дома
- Тип кровли: Дома с иной крышей
- Отделка: Без отделки
- Размер: 9x12









