Проект одноэтажной бани Арканзас
Дом подходит для:
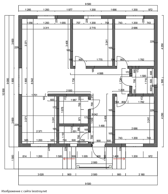
Площадь
76 м 2
Размер дома:
9x9
Этажей:
1
Спален:
1
Санузел:
1
Гараж:
Нет
Баня:
Нет
Терраса:
Да
Панорамные окна:
Нет
Мастер-спальня:
Нет
Планировка
Фасады
О проекте
Комфортный дом площадью 76 м² с жилой площадью 67 м² предназначен для семьи с одним ребенком. Каркасные стены обеспечивают тепло и энергоэффективность, а металлочерепица надежно защищает от внешних воздействий. Внутри — уютные и светлые помещения, наполненные домашним теплом. Здесь все продумано для гармоничного быта.Характеристики
- Общая площадь: 76 м2
- Жилая площадь: 67 м2
- Количество этажей: 1
- Гараж: нет
- Площадь кровли: 79 м2
- Форма: Квадратные дома
- Тип кровли: Дома с двускатной крышей
- Пристрой: Дома с террасой
- Отделка: С черновой отделкой
- Размер: 9x9
Материалы и перечень работ
- В стоимость не входит
- Обвязка-Строганный брус 140х140
- Лаги пола-Строганная доска 45х190,шаг не более 385мм
- Стойки каркаса-Строганная доска ,сечение по расчету
- Утепление-Роквул Скандик 150
- Ветрозащита-Ондутис SA 130
- Карнизные свесы 500
- Стропильная система-Строганная доска ,сечение по расчету
- Утепление-Роквул Скандик 200
- Обрешетка-Обрезная доска 20-25мм
- Кровля-Металлочерепица 0,45 мм
- Окна-Пластиковые Рехау 60мм, энергосберегающие
- Двери входные-Металлическая с терморазрывом
- В стоимость не входит
- Наружная отделка-Вагонка камерной сушки
- В стоимость не входит
- Обвязка-Строганный брус 140х140
- Лаги пола-Строганная доска 45х190,шаг не более 385мм
- Стойки каркаса-Строганная доска ,сечение по расчету
- Утепление-Роквул Скандик 150
- Ветрозащита-Ондутис SA 130
- Карнизные свесы 500
- Стропильная система-Строганная доска ,сечение по расчету
- Утепление-Роквул Скандик 200
- Обрешетка-Обрезная доска 20-25мм
- Кровля-Металлочерепица 0,45 мм
- Окна-Пластиковые Рехау 60мм, энергосберегающие
- Двери входные-Металлическая с терморазрывом
- В стоимость не входит
- Наружная отделка-Вагонка камерной сушки
Что еще входит в стоимость:
Отправьте свои контакты и мы расчитаем вам смету
Скорее всего вам подойдут следующие проекты домов:
Дом подходит для:
Дом подходит для:
Дом подходит для:














