Ваш город:

Проект одноэтажного дома Артек 2

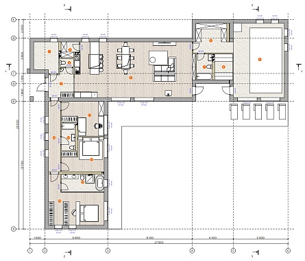
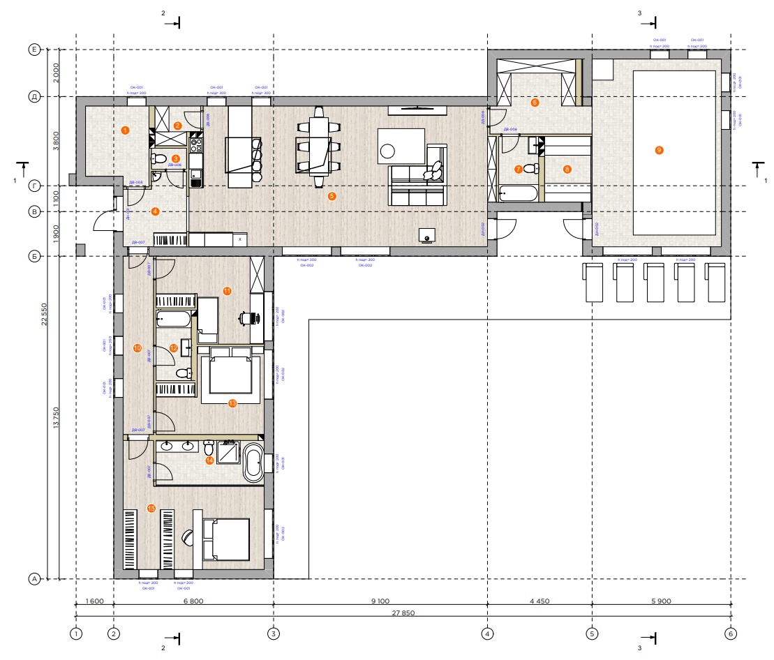
Площадь: 239 м2
Размер: 27,85х22,55
Дом подходит для:
Семья с двумя детьми
Этажей:
1
Стены:
Кровля:
Металлочерепица
Цена:
Оставить заявку
Площадь
239 м 2
Размер дома:
27,85х22,55
Этажей:
1
Спален:
3
Санузел:
2
Гараж:
Нет
Баня:
Нет
Терраса:
Да
Панорамные окна:
Нет
Мастер-спальня:
Нет
Фасады
О проекте
Артек 2 — кирпичный дом площадью 239 м² с жилыми 197 м², где современный стиль сочетается с домашним теплом. Высокие потолки и панорамные окна наполняют пространство светом, а добротные стены обеспечивают тишину и тепло. Металлочерепица придает фасаду благородство, а продуманная отделка делает интерьер гармоничным. Это дом для тех, кто ценит надежность и комфорт.

Характеристики
  • Общая площадь: 239.3 м2
  • Жилая площадь: 197 м2
  • Количество этажей: 1
  • Гараж: нет
  • Площадь кровли: 240 м2
  • Форма: Г-образные дома
  • Тип кровли: Дома с плоской крышей
  • Пристрой: Дома с верандой
  • Отделка: White box
  • Отделка фасада: Дома с комбинированной отделкой
  • Фундамент: Дома с плитным фундаментом
  • Класс дома: Дома класса Стандарт
Материалы и перечень работ
  • Утепленная монолитная плита с усиленными ребрами жесткостями под несущие стены
  • Разделяющий слой из геотекстиля (Такая прослойка станет надежным барьером и предотвратит смешивание песка и его заиливание);
  • Разработка котлована (снятие плодородного слоя);
  • Теплоизоляция фундамента и грунта под зданием (ЭППС 50мм)
  • Арматурный каркас (диаметр 6, 12 и 14 мм);
  • Изготовление ж/б армопояса соответствует требования СНиП, что позволяет выдерживать большие нагрузки и распределять их равномерно;
  • Армопояс утеплен и исключает мостики холода.
  • Несущие стены толщиной 300 мм, благодаря высоким теплотехническим свойствам с учетом внешней отделки (кирпичная кладка/утепленные панели под кирпич) проходят норму теплосопротивляемости и не нуждаются в дополнительном утеплении.
  • Перекрытия из железобетонных плит заводского изготовления. Расчетная прочность которых в 5 раз выше, чем деревянное перекрытия из бруса.
  • Покрытие кровли - металлочерепица Grandline с полимерным покрытием Satin
  • Стропильная система Брус естественной влажности, по ГОСТ. Размер сечения 50 х 200 мм.
  • Гидро-ветрозащитная мембрана
  • Пароизоляционная пленка
  • В стоимость не входит
  • В стоимость не входит
  • В стоимость не входит
  • Утепленная монолитная плита с усиленными ребрами жесткостями под несущие стены
  • Разделяющий слой из геотекстиля (Такая прослойка станет надежным барьером и предотвратит смешивание песка и его заиливание);
  • Разработка котлована (снятие плодородного слоя);
  • Теплоизоляция фундамента и грунта под зданием (ЭППС 50мм)
  • Арматурный каркас (диаметр 6, 12 и 14 мм);
  • Изготовление ж/б армопояса соответствует требования СНиП, что позволяет выдерживать большие нагрузки и распределять их равномерно;
  • Армопояс утеплен и исключает мостики холода.
  • Несущие стены толщиной 300 мм, благодаря высоким теплотехническим свойствам с учетом внешней отделки (кирпичная кладка/утепленные панели под кирпич) проходят норму теплосопротивляемости и не нуждаются в дополнительном утеплении.
  • Перекрытия из железобетонных плит заводского изготовления. Расчетная прочность которых в 5 раз выше, чем деревянное перекрытия из бруса.
  • Покрытие кровли - металлочерепица Grandline с полимерным покрытием Satin
  • Стропильная система Брус естественной влажности, по ГОСТ. Размер сечения 50 х 200 мм.
  • Гидро-ветрозащитная мембрана
  • Пароизоляционная пленка
  • В стоимость не входит
  • В стоимость не входит
  • В стоимость не входит
Что еще входит в стоимость:
Технический надзор
Фото и видеоотчет
Отправьте свои контакты и мы расчитаем вам смету
Прикрепить документ
Скорее всего вам подойдут следующие проекты домов: