Проект одноэтажного дома АСД-1003
Дом подходит для:
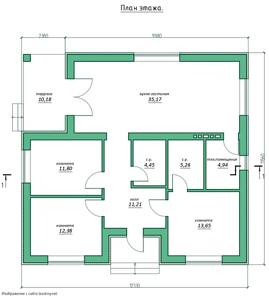
Площадь
130 м 2
Размер дома:
12.99x14
Этажей:
1
Спален:
3
Санузел:
1
Гараж:
Нет
Баня:
Нет
Терраса:
Нет
Панорамные окна:
Нет
Мастер-спальня:
Нет
Планировка
Фасады
О проекте
Дом площадью 130 м² с жилой зоной 94 м² идеально подходит для тех, кто ценит комфорт и качество. Кирпичные стены обеспечивают надежность и долговечность, а светлые интерьеры наполнены уютом. Продуманная планировка делает пространство функциональным и удобным для повседневной жизни. Здесь царит атмосфера тепла и семейного счастья.Характеристики
- Общая площадь: 129.58 м2
- Жилая площадь: 94 м2
- Количество этажей: 1
- Гараж: нет
- Высота дома: 8 м
- Площадь кровли: 132 м2
- Отделка: Без отделки
- Фундамент: Дома с ленточным фундаментом
Материалы и перечень работ
- Ленточный фундамент
- Двойная гидроизоляция фундамента – гидростеклоизол
- Наружные несущие стены из материала на усмотрение заказчика (силикатный, пустотелый или гиперпрессованный кирпич)
- Внутренние несущие стены из материала на усмотрение заказчика
- Межкомнатные перегородки из материала на усмотрение заказчика
- Металлочерепица, оцинкованная, толщина стали 0.5 мм (полиэстер)
- Стропильная система 50х200 мм
- Подшивка свесов карнизов (софиты): Docke
- Водосточная система: Docke
- 2-камерный стеклопакет Rehau, фурнитура Roto, антимоскитные сетки
- Подоконники ПВХ
- Монтаж металлических оцинкованных подоконных отливов
- Утепленная металлическая дверь, толщина металла 1.5 мм
- Отделка дверных проемов, углов комнат
- В стоимость не входит
- Оформленные перемычками оконные проёмы
- Ленточный фундамент
- Двойная гидроизоляция фундамента – гидростеклоизол
- Наружные несущие стены из материала на усмотрение заказчика (силикатный, пустотелый или гиперпрессованный кирпич)
- Внутренние несущие стены из материала на усмотрение заказчика
- Межкомнатные перегородки из материала на усмотрение заказчика
- Металлочерепица, оцинкованная, толщина стали 0.5 мм (полиэстер)
- Стропильная система 50х200 мм
- Подшивка свесов карнизов (софиты): Docke
- Водосточная система: Docke
- 2-камерный стеклопакет Rehau, фурнитура Roto, антимоскитные сетки
- Подоконники ПВХ
- Монтаж металлических оцинкованных подоконных отливов
- Утепленная металлическая дверь, толщина металла 1.5 мм
- Отделка дверных проемов, углов комнат
- В стоимость не входит
- Оформленные перемычками оконные проёмы
Что еще входит в стоимость:
Отправьте свои контакты и мы расчитаем вам смету
Скорее всего вам подойдут следующие проекты домов:
Дом подходит для:
Дом подходит для:









