Проект одноэтажной бани Баня Олимпия
Дом подходит для:
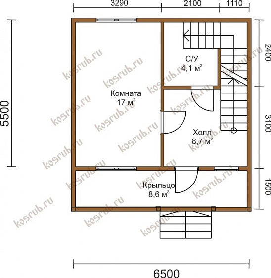
Площадь
121 м 2
Размер дома:
16,5х7,5
Этажей:
1
Спален:
1
Санузел:
1
Гараж:
Нет
Баня:
Нет
Терраса:
Нет
Панорамные окна:
Нет
Мастер-спальня:
Нет
Планировка
Характеристики
- Общая площадь: 121 м2
- Жилая площадь: 50 м2
- Количество этажей: 1
- Гараж: нет
- Площадь кровли: 124 м2
- Отделка: Без отделки
Материалы и перечень работ
- Гидроизоляция фундамента
- Стеновой элемент ( клееный профилированный брус) сечением 200х262 мм. Профиль
- Подкладная доска под первый венец ( лиственница сечением 50*200/150 мм)
- Стропильная система из клееных балок (сечение по проекту)
- Лаги и балки межэтажных перекрытий (сечение по проекту)
- Кровельная мембрана Delta или Rothoblaas
- Контробрешетка (сухая строганная хвойных пород, сечение по проекту)
- Металлочерепица* Grand Line или мягкая черепица Katepa. *комплект согласно проекту — кровельное покрытие, коньковый элемент, карнизная планка, планка примыкания, снегозадержание
- Обсадная доска и брусок на оконные и дверные проемы (доска сухая строганная либо фанера, сечение по проекту)
- Металлопластикоые окна и балконные двери VEKA\ Rehau
- Вентиляционные выходы Vilpe
- Конструктивные клееные элементы (несущие балки, столбы, сечение по проекту)
- Комплект метизов для сборки основного комплекта (оцинкованные)
- Обработка торцов бруса защитным составом JRM Teknos
- Гидроизоляция фундамента
- Стеновой элемент ( клееный профилированный брус) сечением 200х262 мм. Профиль
- Подкладная доска под первый венец ( лиственница сечением 50*200/150 мм)
- Стропильная система из клееных балок (сечение по проекту)
- Лаги и балки межэтажных перекрытий (сечение по проекту)
- Кровельная мембрана Delta или Rothoblaas
- Контробрешетка (сухая строганная хвойных пород, сечение по проекту)
- Металлочерепица* Grand Line или мягкая черепица Katepa. *комплект согласно проекту — кровельное покрытие, коньковый элемент, карнизная планка, планка примыкания, снегозадержание
- Обсадная доска и брусок на оконные и дверные проемы (доска сухая строганная либо фанера, сечение по проекту)
- Металлопластикоые окна и балконные двери VEKA\ Rehau
- Вентиляционные выходы Vilpe
- Конструктивные клееные элементы (несущие балки, столбы, сечение по проекту)
- Комплект метизов для сборки основного комплекта (оцинкованные)
- Обработка торцов бруса защитным составом JRM Teknos
Что еще входит в стоимость:
Отправьте свои контакты и мы расчитаем вам смету
Скорее всего вам подойдут следующие проекты домов:
Дом подходит для:
Дом подходит для:
Дом подходит для:











