Проект двухэтажного дома Барн Хаус 2
Площадь
90 м 2
Размер дома:
6x7
Этажей:
2
Спален:
2
Санузел:
0
Гараж:
Нет
Баня:
Нет
Терраса:
Нет
Панорамные окна:
Нет
Мастер-спальня:
Нет
О проекте
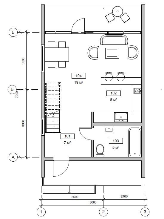
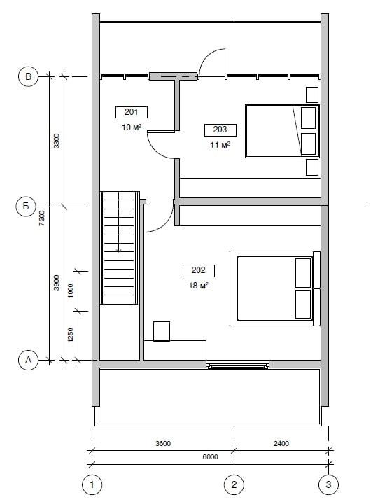
Современный двухэтажный дом площадью 90 м² из бруса с кровлей из профнастила. Проект в стиле модерн включает 2 спальни и лаконичные формы. Идеален для любителей минимализма и функционального пространства. Дом гармонично впишется в любой ландшафт.Характеристики
- Общая площадь: 90 м2
- Количество этажей: 2
- Стиль, разновидность: Дома в стиле Модерн
- Форма: Прямоугольные дома
- Тип кровли: Дома с двускатной крышей
- Отделка: Без отделки
- Размер: 6x7
Отправьте свои контакты и мы расчитаем вам смету
Скорее всего вам подойдут следующие проекты домов:
Дом подходит для:
Дом подходит для:
Дом подходит для:












