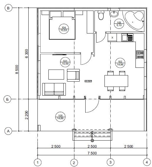
Проект одноэтажного дома Барн Хаус
Площадь
64 м 2
Размер дома:
Этажей:
1
Спален:
1
Санузел:
0
Гараж:
Нет
Баня:
Нет
Терраса:
Нет
Панорамные окна:
Нет
Мастер-спальня:
Нет
О проекте
Проект создал визуальную легкость, чтобы подчеркнуть весомость семьи. Это не просто 240 м² — это зона комфорта. Крыша из черепица подчёркивает современный облик дома. Каркаса делает дом надёжным при любой погоде. Проект включает 3 спальни — удобно для семьи.Характеристики
- Общая площадь: 64 м2
- Количество этажей: 1
- Стиль, разновидность: Дома в ином стиле
- Форма: Прямоугольные дома
- Тип кровли: Дома с двускатной крышей
- Отделка: Без отделки
Отправьте свои контакты и мы расчитаем вам смету
Скорее всего вам подойдут следующие проекты домов:
Дом подходит для:
Дом подходит для:
Дом подходит для:














