Проект одноэтажного дома BARN MINI 52
Дом подходит для:
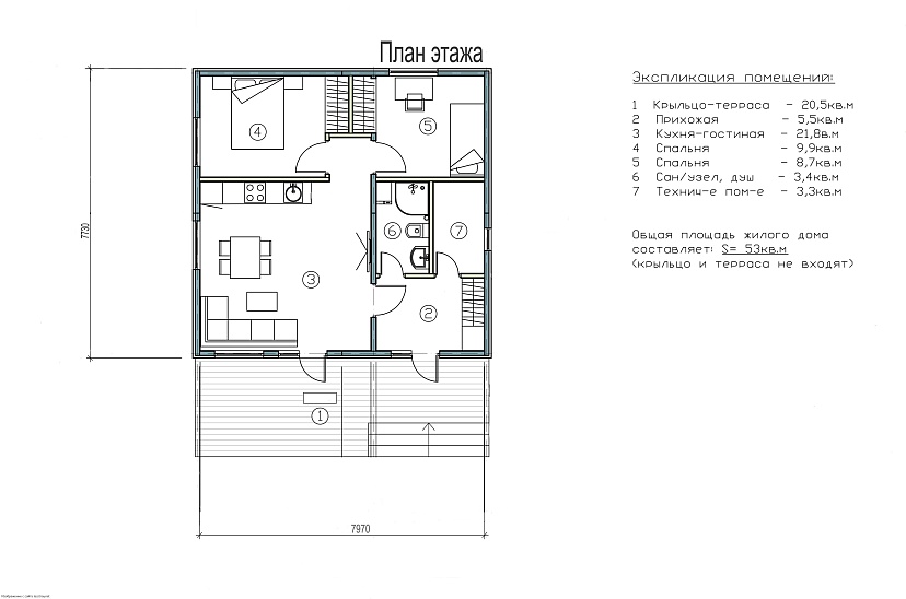
Площадь
52 м 2
Размер дома:
12,68х4,8
Этажей:
1
Спален:
1
Санузел:
1
Гараж:
Нет
Баня:
Нет
Терраса:
Нет
Панорамные окна:
Нет
Мастер-спальня:
Нет
Планировка
Фасады
О проекте
Миниатюрные 52 м² с жилыми 31 м² создают уютное пространство для одного человека. Каркасная конструкция обеспечивает тепло и надежность, а продуманная планировка делает жизнь удобной. Несмотря на небольшие размеры, здесь есть все необходимое для комфорта. Это идеальное решение для тех, кто ценит компактность и функциональность.Материалы и перечень работ
- В стоимость не входит
- Силовой каркас — фермы из строганной сосны камерной сушки 190/195х45 Сетка для защиты от крыс и мышей.
- Утеплитель — Базальтовая вата PAROC / Rockwool
- Мембрана гидро-ветрозащитная / пароизоляция — Juta (Чехия). Герметизация нахлеста и примыкания пленки скотчем D-tack.
- Вариативная
- Максимально энергоэффективные двухкамерные стеклопакеты: Двойной стеклопакет (3 стекла, 2 камеры)
- Окна: деревянные окна, 78 мм профиль из клееного бруса
- Входная — теплая финская дверь JELDWEN BASIC серого цвета с комплектующими Abloy (черная ручка и цилиндр) и стоппером для удобства использования.
- Дверь на веранду — Деревянная входная дверь с панорамным энергоэффективным стеклом, фурнитурой ROTO и усиленными петлями для максимальной защиты от провисания.
- Межкомнатные — финские межкомнатные двери JELDEN EASY белого цвета.
- Мощный (до 170/240 м3/ч) вентилятор Soler & Palau на вытяжку, приточные клапана в гостиной.
- Скрытая проводка, провода не распространяющие горение ВВГнГ, щит распределительный в доме.
- 3-х фазное подключение
- Уличные розетки и уличные светильники
- Внешняя облицовка — Кликфальц Pro Grand Line или планкен
- Обрешетка и контробрешетка
- Гидроветрозащитная мембрана Juta, проклеенная скотчем или МДВП 20-25 мм.
- Каркас из сухой строганой доски 195×45 мм.
- Утеплитель 200 мм.
- В стоимость не входит
- Силовой каркас — фермы из строганной сосны камерной сушки 190/195х45 Сетка для защиты от крыс и мышей.
- Утеплитель — Базальтовая вата PAROC / Rockwool
- Мембрана гидро-ветрозащитная / пароизоляция — Juta (Чехия). Герметизация нахлеста и примыкания пленки скотчем D-tack.
- Вариативная
- Максимально энергоэффективные двухкамерные стеклопакеты: Двойной стеклопакет (3 стекла, 2 камеры)
- Окна: деревянные окна, 78 мм профиль из клееного бруса
- Входная — теплая финская дверь JELDWEN BASIC серого цвета с комплектующими Abloy (черная ручка и цилиндр) и стоппером для удобства использования.
- Дверь на веранду — Деревянная входная дверь с панорамным энергоэффективным стеклом, фурнитурой ROTO и усиленными петлями для максимальной защиты от провисания.
- Межкомнатные — финские межкомнатные двери JELDEN EASY белого цвета.
- Мощный (до 170/240 м3/ч) вентилятор Soler & Palau на вытяжку, приточные клапана в гостиной.
- Скрытая проводка, провода не распространяющие горение ВВГнГ, щит распределительный в доме.
- 3-х фазное подключение
- Уличные розетки и уличные светильники
- Внешняя облицовка — Кликфальц Pro Grand Line или планкен
- Обрешетка и контробрешетка
- Гидроветрозащитная мембрана Juta, проклеенная скотчем или МДВП 20-25 мм.
- Каркас из сухой строганой доски 195×45 мм.
- Утеплитель 200 мм.
Что еще входит в стоимость:
Отправьте свои контакты и мы расчитаем вам смету
Скорее всего вам подойдут следующие проекты домов:
Проект одноэтажного дома 3051 - каркасный дом с плоской крышей с двумя спальнями
Семья с одним ребенком
Дом подходит для:
Дом подходит для:
Проект одноэтажного дома ДБХ006
Семья с одним ребенком
Дом подходит для:
Дом подходит для:
Проект одноэтажного дома Woodhouse 45 Pro
Семья с одним ребенком
Дом подходит для:
Дом подходит для:















