Проект двухэтажного дома БД-23 (10х9)
Площадь
180 м 2
Размер дома:
9x10
Этажей:
2
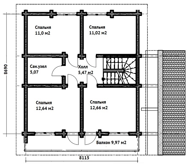
Спален:
3
Санузел:
0
Гараж:
Нет
Баня:
Нет
Терраса:
Нет
Панорамные окна:
Нет
Мастер-спальня:
Нет
О проекте
Цифровой комфорт нового поколения.Дом даёт 273 м² для отдыха, творчества и общения. Двухэтажная современная планировка создаёт идеальные условия для жизни всей семьи. Газобетона делает дом надёжным при любой погоде. Проект включает 4 спальни — удобно для семьи.Характеристики
- Общая площадь: 180 м2
- Количество этажей: 2
- Стиль, разновидность: Дома в стиле Русский
- Форма: Прямоугольные дома
- Тип кровли: Дома с иной крышей
- Отделка: Без отделки
- Размер: 9x10
Отправьте свои контакты и мы расчитаем вам смету
Скорее всего вам подойдут следующие проекты домов:
Дом подходит для:
Дом подходит для:
Дом подходит для:













