Проект двухэтажного дома Беломорск
Площадь
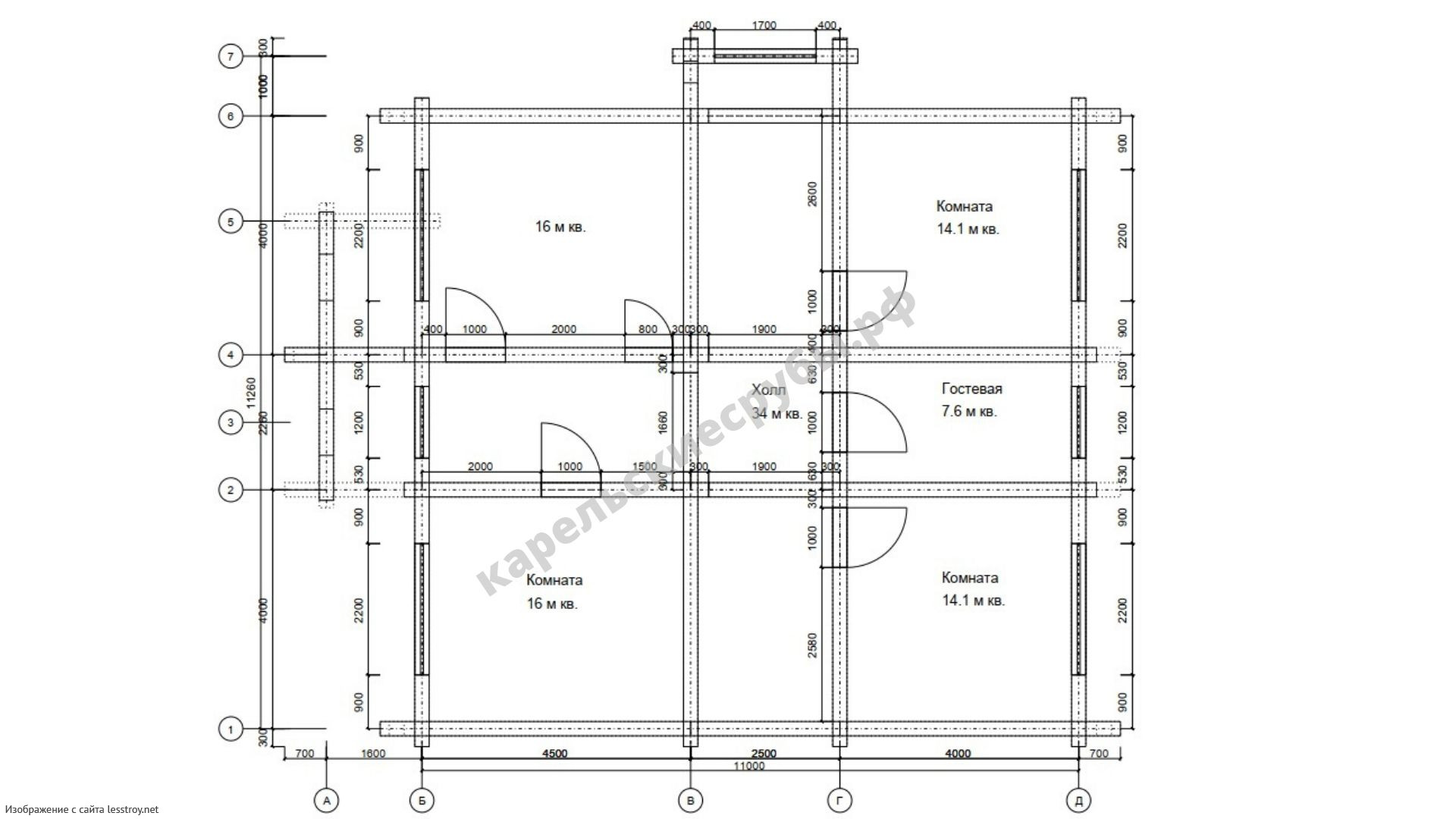
136 м 2
Размер дома:
Этажей:
2
Спален:
3
Санузел:
0
Гараж:
Нет
Баня:
Нет
Терраса:
Нет
Панорамные окна:
Нет
Мастер-спальня:
Нет
О проекте
Архитектура здесь не подавляет, а создает идеальный фон для жизни в любом ее проявлении.Рационально распределённые 170 м² делают жильё удобным. Конструкция из каркаса обеспечивает прочность и долговечность. Архитектура выполнена в стиле дома в стиле русский. Двухэтажная просторная планировка обеспечивает комфортную навигацию внутри дома.Характеристики
- Общая площадь: 136 м2
- Количество этажей: 2
- Стиль, разновидность: Финские дома
- Форма: Прямоугольные дома
- Тип кровли: Дома с двускатной крышей
- Отделка: Без отделки
Отправьте свои контакты и мы расчитаем вам смету
Скорее всего вам подойдут следующие проекты домов:
Дом подходит для:
Дом подходит для:
Дом подходит для:













