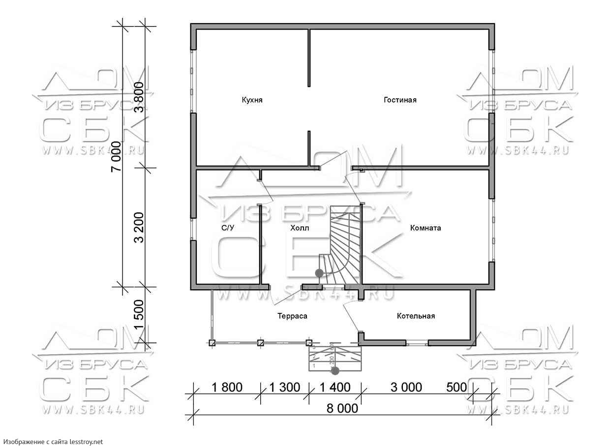
Проект двухэтажного дома Береговой
Площадь
100 м 2
Размер дома:
7x8
Этажей:
2
Спален:
2
Санузел:
0
Гараж:
Нет
Баня:
Нет
Терраса:
Нет
Панорамные окна:
Нет
Мастер-спальня:
Нет
О проекте
Здесь даже обычный день становится особенным.118 м² — достаточная площадь для организации всех необходимых зон. Материал кровли — металлочерепица, что добавляет зданию индивидуальность. Выбор бруса обусловлен его теплоизоляционными свойствами. Дом спроектирован в духе дома в стиле русский.Характеристики
- Общая площадь: 100 м2
- Количество этажей: 2
- Стиль, разновидность: Дома в стиле Русский
- Форма: Прямоугольные дома
- Тип кровли: Дома с мансардной крышей
- Отделка: Без отделки
- Размер: 7x8
Отправьте свои контакты и мы расчитаем вам смету
Скорее всего вам подойдут следующие проекты домов:
Дом подходит для:
Дом подходит для:
Дом подходит для:













