Проект двухэтажного дома Бергамо
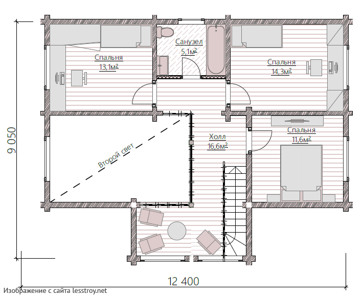
Площадь
133 м 2
Размер дома:
Этажей:
2
Спален:
4
Санузел:
0
Гараж:
Нет
Баня:
Нет
Терраса:
Нет
Панорамные окна:
Нет
Мастер-спальня:
Нет
О проекте
Дом выглядит современно, но без излишней строгости, сохраняя домашнюю атмосферу.Каждый метр из 42 м² задействован с умом. Выбор каркаса обусловлен его теплоизоляционными свойствами. Количество спален — 1, делая планировку гибкой. Дом спроектирован в духе дома в классическом стиле.Характеристики
- Общая площадь: 133 м2
- Количество этажей: 2
- Стиль, разновидность: Дома в ином стиле
- Форма: Прямоугольные дома
- Тип кровли: Дома с многощипцовой крышей
- Отделка: Без отделки
Отправьте свои контакты и мы расчитаем вам смету
Скорее всего вам подойдут следующие проекты домов:
Дом подходит для:
Дом подходит для:
Дом подходит для:












