Проект двухэтажного дома Чупа
Площадь
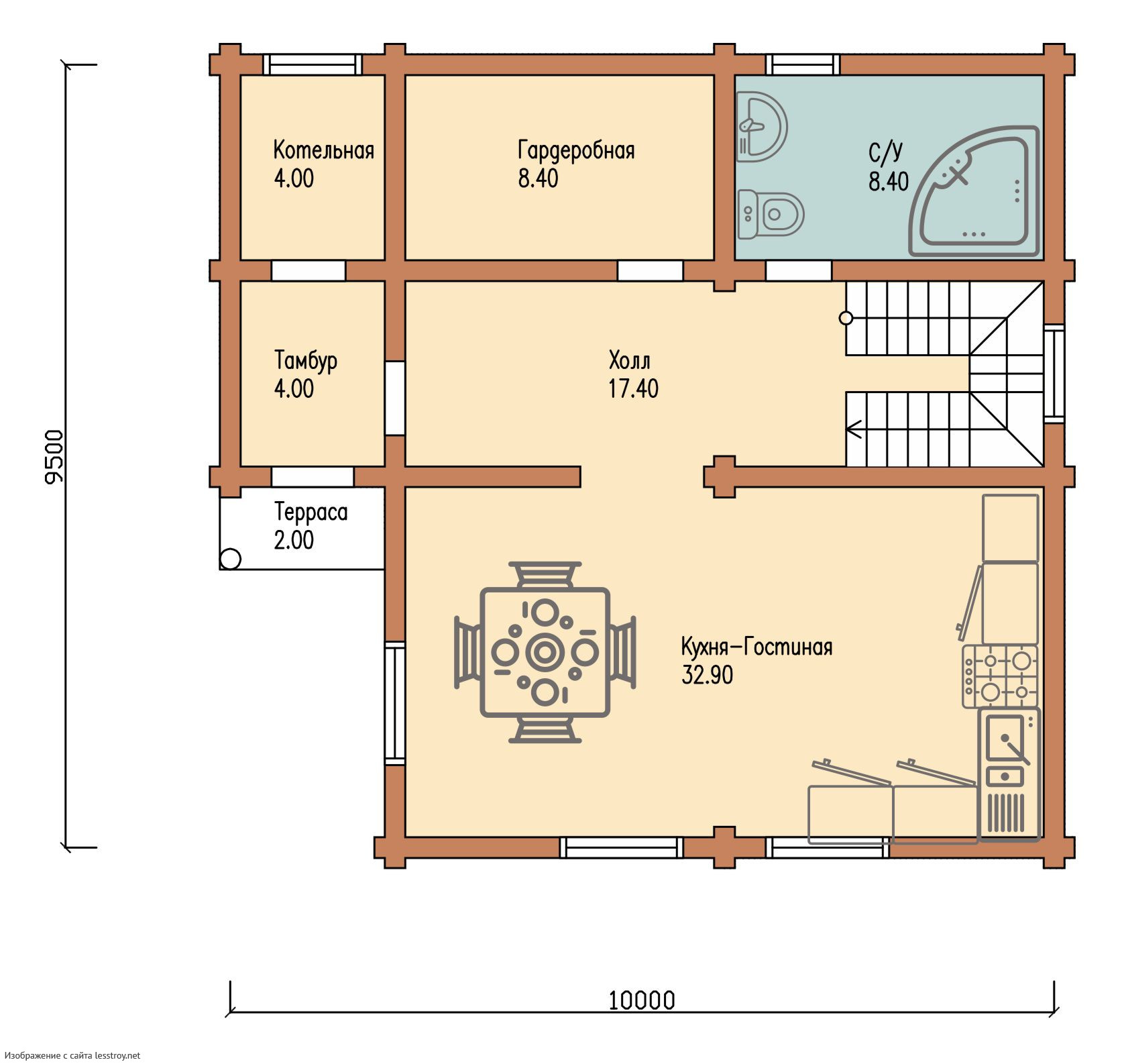
138 м 2
Размер дома:
Этажей:
2
Спален:
2
Санузел:
0
Гараж:
Нет
Баня:
Нет
Терраса:
Нет
Панорамные окна:
Нет
Мастер-спальня:
Нет
О проекте
Проект учитывает сезонные изменения освещенности для создания комфортной среды.Даже при 104 м² пространство не теряет своей гармонии. Наличие 3 спальни удовлетворит запросы семьи с детьми. В качестве кровли использована рубероид — материал, проверенный временем. Конструкция из бруса обеспечивает прочность и долговечность.Характеристики
- Общая площадь: 138 м2
- Количество этажей: 2
- Стиль, разновидность: Дома в стиле Русский
- Форма: Прямоугольные дома
- Тип кровли: Дома с многощипцовой крышей
- Отделка: Без отделки
Отправьте свои контакты и мы расчитаем вам смету
Скорее всего вам подойдут следующие проекты домов:
Проект двухэтажного дома Дом из клееного бруса с террасой и балконом. Проект Светово.
Для большой семьи
Дом подходит для:
Дом подходит для:
Дом подходит для:
Дом подходит для:











