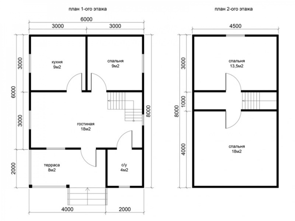
Проект двухэтажного дома Д-14 дом из бруса 6,0х8,0м с террасой 2,0х4,0м
Площадь
79 м 2
Размер дома:
6x8
Этажей:
2
Спален:
3
Санузел:
0
Гараж:
Нет
Баня:
Нет
Терраса:
Нет
Панорамные окна:
Нет
Мастер-спальня:
Нет
О проекте
Вам понравится, как легко поддерживать порядок во всех помещениях. 140 м² жилого пространства — разумное решение для повседневной жизни. Проект включает 3 спальни — удобно для семьи. Двухэтажная просторная планировка обеспечивает комфортную навигацию внутри дома. В качестве кровли использована металлочерепица — материал, проверенный временем.Характеристики
- Общая площадь: 79 м2
- Количество этажей: 2
- Стиль, разновидность: Дома в ином стиле
- Форма: Прямоугольные дома
- Тип кровли: Дома с иной крышей
- Отделка: Без отделки
- Размер: 6x8







