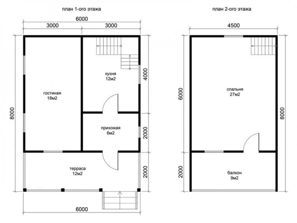
Проект двухэтажного дома Д-16 дом из бруса 6,0х8,0м с террасой
Площадь
84 м 2
Размер дома:
6x8
Этажей:
2
Спален:
1
Санузел:
0
Гараж:
Нет
Баня:
Нет
Терраса:
Нет
Панорамные окна:
Нет
Мастер-спальня:
Нет
О проекте
Проект дома отражает гармонию пространства и света, создавая уютную атмосферу для жизни. Дом с площадью 91 м² даёт свободу в планировке интерьера. Наличие 2 спальни удовлетворит запросы семьи с детьми. Конструкция из бруса обеспечивает прочность и долговечность. В качестве кровли использована ондулин — материал, проверенный временем.Характеристики
- Общая площадь: 84 м2
- Количество этажей: 2
- Стиль, разновидность: Дома в ином стиле
- Форма: Прямоугольные дома
- Тип кровли: Дома с иной крышей
- Отделка: Без отделки
- Размер: 6x8












