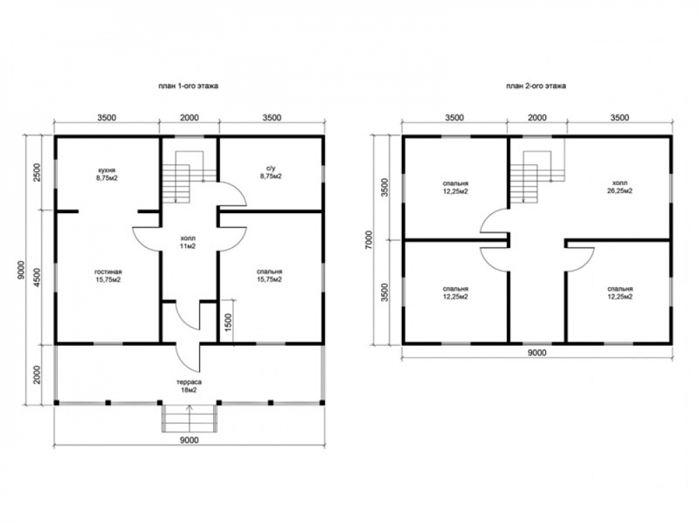
Проект двухэтажного дома Д-17 дом из бруса 9,0х7,0м с террасой 9,0х2,0м
Площадь
130 м 2
Размер дома:
7x9
Этажей:
2
Спален:
4
Санузел:
0
Гараж:
Нет
Баня:
Нет
Терраса:
Нет
Панорамные окна:
Нет
Мастер-спальня:
Нет
О проекте
Вы почувствуете, как продуманная акустика добавляет комфорта.63 м² — отличная база для воплощения дизайнерских идей. Бруса делает дом надёжным при любой погоде. Двухэтажная эргономичная планировка обеспечивает комфортную навигацию внутри дома. Материал кровли — ондулин, что добавляет зданию индивидуальность.Характеристики
- Общая площадь: 130 м2
- Количество этажей: 2
- Стиль, разновидность: Дома в ином стиле
- Форма: Прямоугольные дома
- Тип кровли: Дома с иной крышей
- Отделка: Без отделки
- Размер: 7x9








