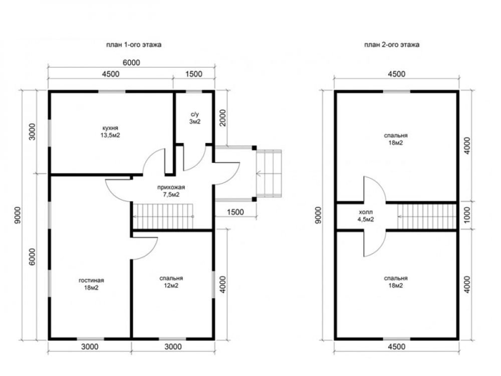
Проект двухэтажного дома Д-18 дом из бруса 6,0х9,0м с мансардой и крыльцом
Площадь
90 м 2
Размер дома:
6x9
Этажей:
2
Спален:
3
Санузел:
0
Гараж:
Нет
Баня:
Нет
Терраса:
Нет
Панорамные окна:
Нет
Мастер-спальня:
Нет
О проекте
Вы сразу оцените преимущества хорошо организованного жилого пространства. Баланс функциональности и уюта в 80 м². Дом спроектирован в духе дома в классическом стиле. Двухэтажная просторная планировка создаёт идеальные условия для жизни всей семьи. Ондулин придаёт дому выразительность и надёжность.Характеристики
- Общая площадь: 90 м2
- Количество этажей: 2
- Стиль, разновидность: Дома в ином стиле
- Форма: Прямоугольные дома
- Тип кровли: Дома с иной крышей
- Отделка: Без отделки
- Размер: 6x9










