Проект одноэтажного дома Д-180/2
Площадь
180 м 2
Размер дома:
Этажей:
1
Спален:
3
Санузел:
0
Гараж:
Нет
Баня:
Нет
Терраса:
Нет
Панорамные окна:
Нет
Мастер-спальня:
Нет
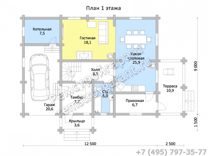
О проекте
Архитектура играет контрастами: смелые формы и мягкий уют.Доступные 195 м² с разумным подходом к каждой зоне. В качестве кровли использована рубероид — материал, проверенный временем. Архитектура выполнена в стиле дома в классическом стиле. Конструкция из бревна обеспечивает прочность и долговечность.Характеристики
- Общая площадь: 180 м2
- Количество этажей: 1
- Стиль, разновидность: Дома в ином стиле
- Форма: Прямоугольные дома
- Тип кровли: Дома с иной крышей
- Отделка: Без отделки
Отправьте свои контакты и мы расчитаем вам смету
Скорее всего вам подойдут следующие проекты домов:
Дом подходит для:
Дом подходит для:
Дом подходит для:












