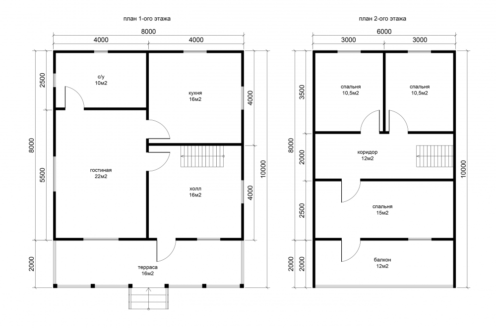
Проект двухэтажного дома Д-22 дом из бруса с мансардным этажом общим размером 8,0х10,0м.
Площадь
140 м 2
Размер дома:
8x10
Этажей:
2
Спален:
3
Санузел:
0
Гараж:
Нет
Баня:
Нет
Терраса:
Нет
Панорамные окна:
Нет
Мастер-спальня:
Нет
О проекте
В этом проекте каждая деталь подчинена идее комфортного проживания.Простор и комфорт объединяются в 99 м². Стены из бруса хорошо держат тепло и защищают от шума. Количество спален — 3, делая планировку гибкой. Дом спроектирован в духе дома в стиле русский.Характеристики
- Общая площадь: 140 м2
- Количество этажей: 2
- Стиль, разновидность: Дома в ином стиле
- Форма: Широкие дома
- Тип кровли: Дома с двускатной крышей
- Отделка: Без отделки
- Размер: 8x10
Отправьте свои контакты и мы расчитаем вам смету
Скорее всего вам подойдут следующие проекты домов:
Дом подходит для:






