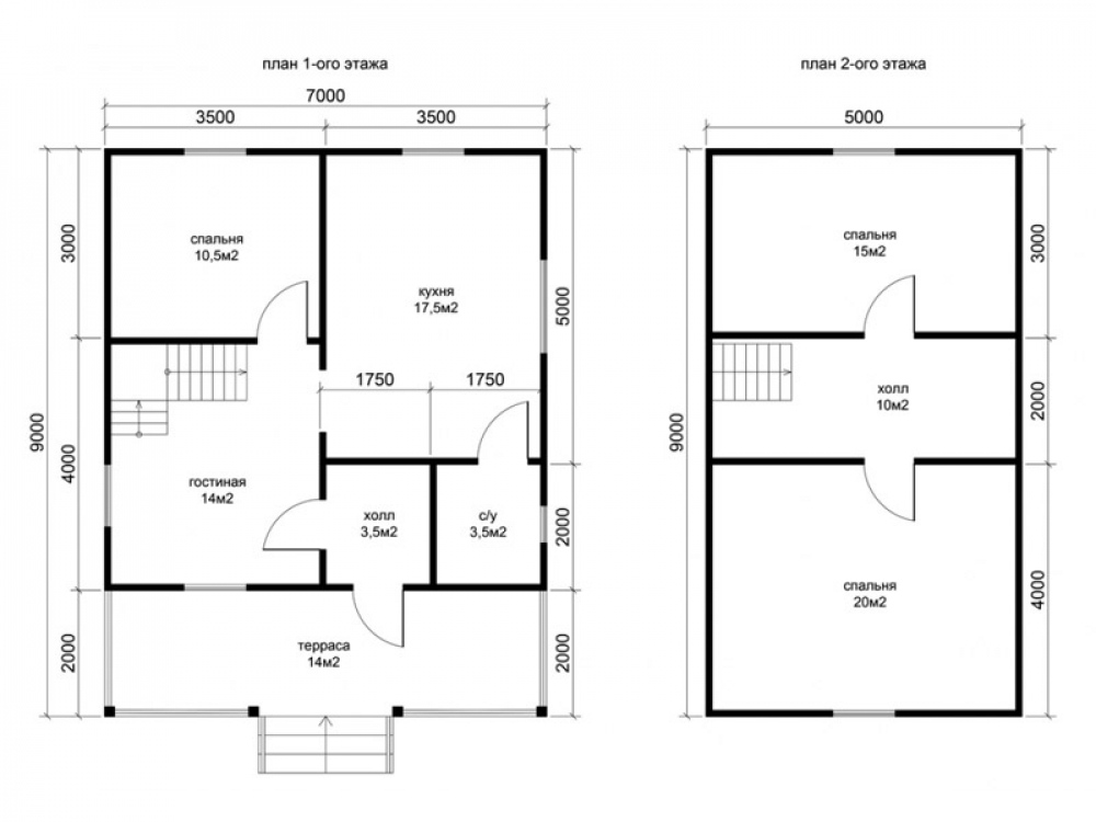
Проект двухэтажного дома Д-23 дом из бруса с мансардой 7,0х9,0м и террасой 2,0х7,0м
Площадь
108 м 2
Размер дома:
7x9
Этажей:
2
Спален:
3
Санузел:
0
Гараж:
Нет
Баня:
Нет
Терраса:
Нет
Панорамные окна:
Нет
Мастер-спальня:
Нет
О проекте
Пространство организовано таким образом, чтобы максимально использовать естественное освещение. 45 м² идеально подойдут для семейных посиделок и личного пространства. В качестве кровли использована металлочерепица — материал, проверенный временем. Архитектура выполнена в стиле дома в классическом стиле. Стены из каркаса хорошо держат тепло и защищают от шума.Характеристики
- Общая площадь: 108 м2
- Количество этажей: 2
- Стиль, разновидность: Дома в ином стиле
- Форма: Прямоугольные дома
- Тип кровли: Дома с иной крышей
- Отделка: Без отделки
- Размер: 7x9













