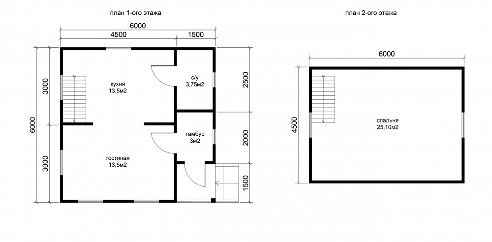
Проект двухэтажного дома Д-24 дом из бруса с мансардным этажом размером 6,0х6,0м.
Площадь
63 м 2
Размер дома:
6x6
Этажей:
2
Спален:
1
Санузел:
0
Гараж:
Нет
Баня:
Нет
Терраса:
Нет
Панорамные окна:
Нет
Мастер-спальня:
Нет
О проекте
В этом решении современность не противоречит уюту, а дополняет его.Даже при 148 м² пространство не теряет своей гармонии. Выбор бруса обусловлен его теплоизоляционными свойствами. Количество спален — 4, делая планировку гибкой. Архитектура выполнена в стиле дома в стиле русский.Характеристики
- Общая площадь: 63 м2
- Количество этажей: 2
- Стиль, разновидность: Дома в ином стиле
- Форма: Квадратные дома
- Тип кровли: Дома с иной крышей
- Отделка: Без отделки
- Размер: 6x6








