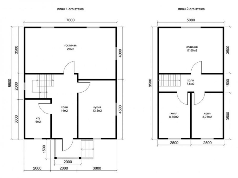
Проект двухэтажного дома Д-29 дом из бруса 7,0х8,5м с крыльцом
Площадь
102 м 2
Размер дома:
7x8
Этажей:
2
Спален:
1
Санузел:
0
Гараж:
Нет
Баня:
Нет
Терраса:
Нет
Панорамные окна:
Нет
Мастер-спальня:
Нет
О проекте
Мы предусмотрели все необходимое для комфортного семейного проживания.С такими 63 м² возможна любая конфигурация комнат. Одноэтажная грамотная планировка организует пространство максимально эффективно. Материал кровли — профнастил, что добавляет зданию индивидуальность. Стены из бруса хорошо держат тепло и защищают от шума.Характеристики
- Общая площадь: 102 м2
- Количество этажей: 2
- Стиль, разновидность: Дома в ином стиле
- Форма: Прямоугольные дома
- Тип кровли: Дома с иной крышей
- Отделка: Без отделки
- Размер: 7x8











