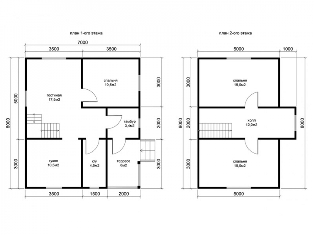
Проект двухэтажного дома Д-33 дом из бруса 7,0х8,0м с террасой и кукушкой
Площадь
94 м 2
Размер дома:
7x8
Этажей:
2
Спален:
3
Санузел:
0
Гараж:
Нет
Баня:
Нет
Терраса:
Нет
Панорамные окна:
Нет
Мастер-спальня:
Нет
О проекте
Вы оцените удобство расположения всех необходимых зон. Каждый из 69 м² продуман до мелочей. Наличие 2 спальни удовлетворит запросы семьи с детьми. В качестве кровли использована ондулин — материал, проверенный временем. Архитектура выполнена в стиле дома в классическом стиле.Характеристики
- Общая площадь: 94 м2
- Количество этажей: 2
- Стиль, разновидность: Дома в ином стиле
- Форма: Прямоугольные дома
- Тип кровли: Дома с иной крышей
- Отделка: Без отделки
- Размер: 7x8













