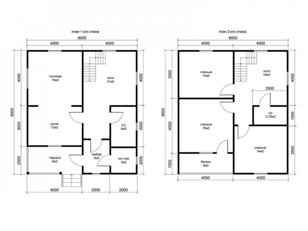
Проект двухэтажного дома Д-39 дом из бруса 8,0х9,0м
Площадь
141 м 2
Размер дома:
8x9
Этажей:
2
Спален:
3
Санузел:
0
Гараж:
Нет
Баня:
Нет
Терраса:
Нет
Панорамные окна:
Нет
Мастер-спальня:
Нет
О проекте
В этом доме вы сразу ощутите баланс между приватностью и открытостью пространства.Каждый метр из 87 м² задействован с умом. Проект включает 4 спальни — удобно для семьи. Ондулин придаёт дому выразительность и надёжность. Архитектура выполнена в стиле дома в классическом стиле.Характеристики
- Общая площадь: 141 м2
- Количество этажей: 2
- Стиль, разновидность: Дома в ином стиле
- Форма: Прямоугольные дома
- Тип кровли: Дома с иной крышей
- Отделка: Без отделки
- Размер: 8x9










