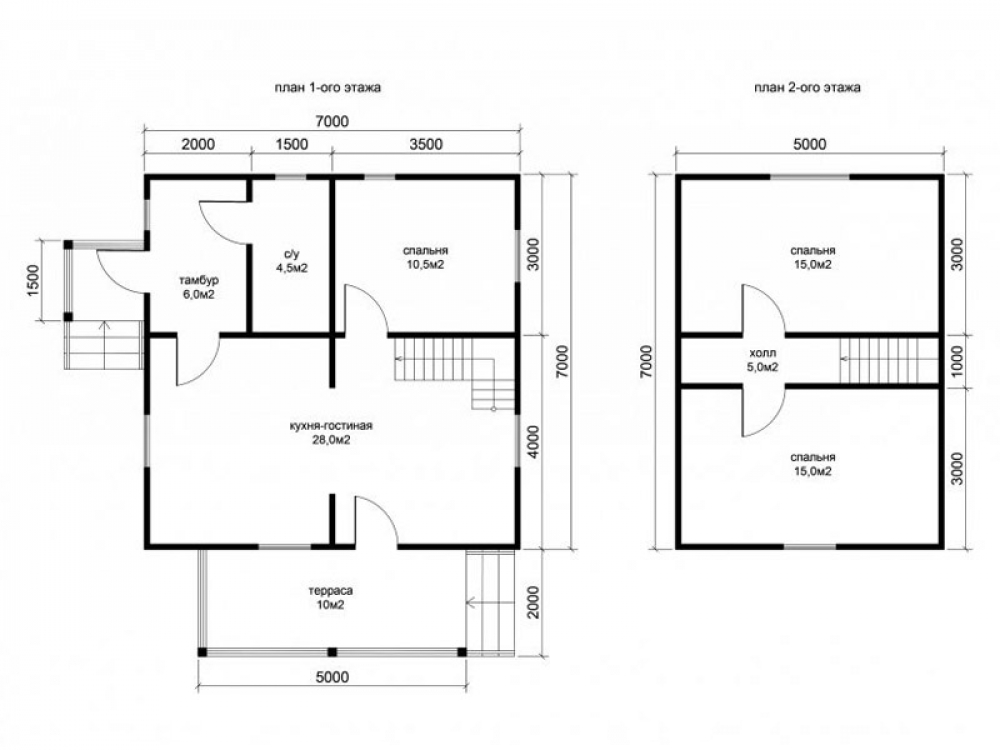
Проект двухэтажного дома Д-40 дом из бруса 7,0х7,0м с террасой 2,0х5,0м под отдельной крышей
Площадь
84 м 2
Размер дома:
7x7
Этажей:
2
Спален:
3
Санузел:
0
Гараж:
Нет
Баня:
Нет
Терраса:
Нет
Панорамные окна:
Нет
Мастер-спальня:
Нет
О проекте
Мы уделили особое внимание созданию комфортных условий для работы и отдыха.Стильный интерьер в рамках 90 м². Двухэтажная уютная планировка разграничивает спальные и дневные помещения. Дом спроектирован в духе дома в классическом стиле. Проект включает 3 спальни — удобно для семьи.Характеристики
- Общая площадь: 84 м2
- Количество этажей: 2
- Стиль, разновидность: Дома в ином стиле
- Форма: Квадратные дома
- Тип кровли: Дома с иной крышей
- Отделка: Без отделки
- Размер: 7x7











