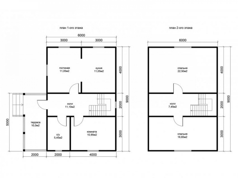
Проект двухэтажного дома Д-47 дом из бруса 6,0х9,0м с террасой
Площадь
106 м 2
Размер дома:
6x9
Этажей:
2
Спален:
2
Санузел:
0
Гараж:
Нет
Баня:
Нет
Терраса:
Нет
Панорамные окна:
Нет
Мастер-спальня:
Нет
О проекте
Этот проект создан для тех, кто ценит удобство в каждой детали.Общее пространство 104 м² вдохновляет на создание уюта. Стены из бруса хорошо держат тепло и защищают от шума. Двухэтажная рациональная планировка разграничивает спальные и дневные помещения. Количество спален — 2, делая планировку гибкой.Характеристики
- Общая площадь: 106 м2
- Количество этажей: 2
- Стиль, разновидность: Дома в ином стиле
- Форма: Прямоугольные дома
- Тип кровли: Дома с иной крышей
- Отделка: Без отделки
- Размер: 6x9











