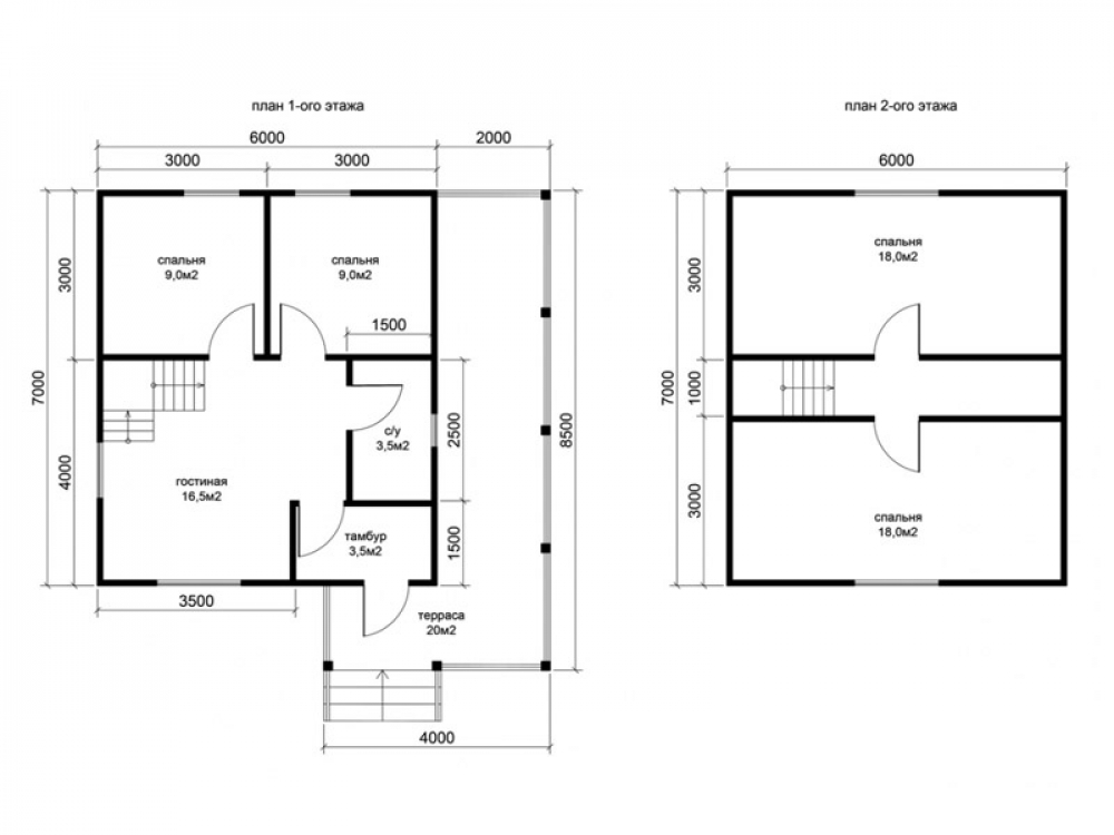
Проект двухэтажного дома Д-48 дом из бруса 8,0х7,0м с террасой
Площадь
97 м 2
Размер дома:
7x8
Этажей:
2
Спален:
4
Санузел:
0
Гараж:
Нет
Баня:
Нет
Терраса:
Нет
Панорамные окна:
Нет
Мастер-спальня:
Нет
О проекте
Мы уделили особое внимание созданию комфортных условий для отдыха. Дом с 122 м² — отличное начало для загородной жизни. Двухэтажная удобная планировка обеспечивает практичное распределение комнат. Ондулин придаёт дому выразительность и надёжность. Дом спроектирован в духе дома в классическом стиле.Характеристики
- Общая площадь: 97 м2
- Количество этажей: 2
- Стиль, разновидность: Дома в ином стиле
- Форма: Прямоугольные дома
- Тип кровли: Дома с иной крышей
- Отделка: Без отделки
- Размер: 7x8













