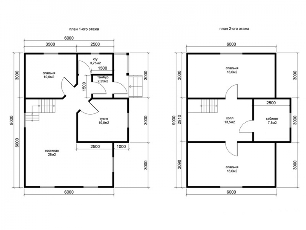
Проект двухэтажного дома Д-50 дом из бруса 7,0х9,0м с террасой
Площадь
111 м 2
Размер дома:
7x9
Этажей:
2
Спален:
3
Санузел:
0
Гараж:
Нет
Баня:
Нет
Терраса:
Нет
Панорамные окна:
Нет
Мастер-спальня:
Нет
О проекте
Вы оцените, как хорошо продумана система естественного освещения. Площадь 118 м² задаёт ритм современного быта. Наличие 2 спальни удовлетворит запросы семьи с детьми. Двухэтажная удобная планировка обеспечивает комфортную навигацию внутри дома. Стены из бруса хорошо держат тепло и защищают от шума.Характеристики
- Общая площадь: 111 м2
- Количество этажей: 2
- Стиль, разновидность: Дома в ином стиле
- Форма: Прямоугольные дома
- Тип кровли: Дома с иной крышей
- Отделка: Без отделки
- Размер: 7x9











