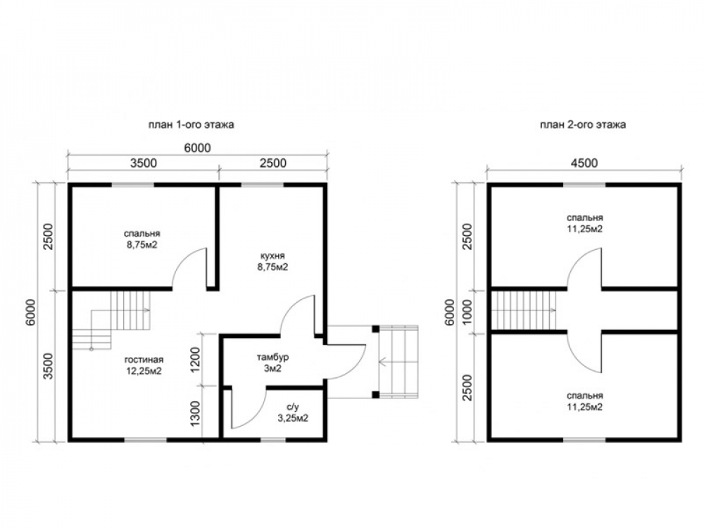
Проект двухэтажного дома Д-52 дом из бруса 6,0х6,0м с крыльцом
Площадь
58 м 2
Размер дома:
6x6
Этажей:
2
Спален:
3
Санузел:
0
Гараж:
Нет
Баня:
Нет
Терраса:
Нет
Панорамные окна:
Нет
Мастер-спальня:
Нет
О проекте
Вы оцените удобство передвижения между комнатами и зонами дома.82 м² — универсальный формат для современного образа жизни. Архитектура выполнена в стиле дома в классическом стиле. Проект включает 2 спальни — удобно для семьи. Двухэтажная удобная планировка разграничивает спальные и дневные помещения.Характеристики
- Общая площадь: 58 м2
- Количество этажей: 2
- Стиль, разновидность: Дома в ином стиле
- Форма: Квадратные дома
- Тип кровли: Дома с иной крышей
- Отделка: Без отделки
- Размер: 6x6





