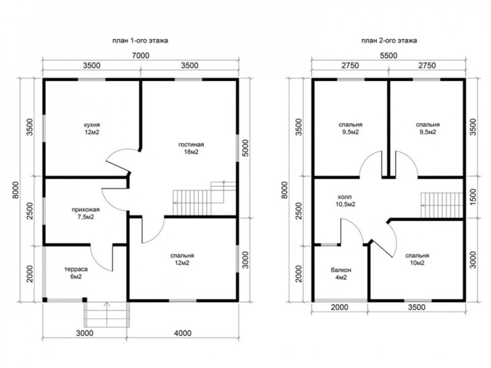
Проект двухэтажного дома Д-55 дом из бруса 7,0х8,0м с террасой и балконом
Площадь
99 м 2
Размер дома:
7x8
Этажей:
2
Спален:
4
Санузел:
0
Гараж:
Нет
Баня:
Нет
Терраса:
Нет
Панорамные окна:
Нет
Мастер-спальня:
Нет
О проекте
Проект воплощает идею единства интерьера и экстерьера, стирая границы между внутренним и внешним пространством.96 м² — достаточная площадь для организации всех необходимых зон. В доме предусмотрено 3 спальни, что важно для комфорта. Стены из бруса хорошо держат тепло и защищают от шума. Двухэтажная удобная планировка делает зонирование более логичным.Характеристики
- Общая площадь: 99 м2
- Количество этажей: 2
- Стиль, разновидность: Дома в ином стиле
- Форма: Прямоугольные дома
- Тип кровли: Дома с иной крышей
- Отделка: Без отделки
- Размер: 7x8














