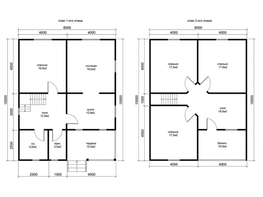
Проект двухэтажного дома Д-65 дом из бруса 8,0х10,0м
Площадь
160 м 2
Размер дома:
8x10
Этажей:
2
Спален:
4
Санузел:
0
Гараж:
Нет
Баня:
Нет
Терраса:
Нет
Панорамные окна:
Нет
Мастер-спальня:
Нет
О проекте
Этот проект учитывает все аспекты современного семейного быта.Площадь 50 м² задаёт ритм современного быта. Одноэтажная уютная планировка разграничивает спальные и дневные помещения. Выбор бруса обусловлен его теплоизоляционными свойствами. Ондулин придаёт дому выразительность и надёжность.Характеристики
- Общая площадь: 160 м2
- Количество этажей: 2
- Стиль, разновидность: Дома в ином стиле
- Форма: Прямоугольные дома
- Тип кровли: Дома с иной крышей
- Отделка: Без отделки
- Размер: 8x10













