Проект одноэтажного дома Д-66
Дом подходит для:
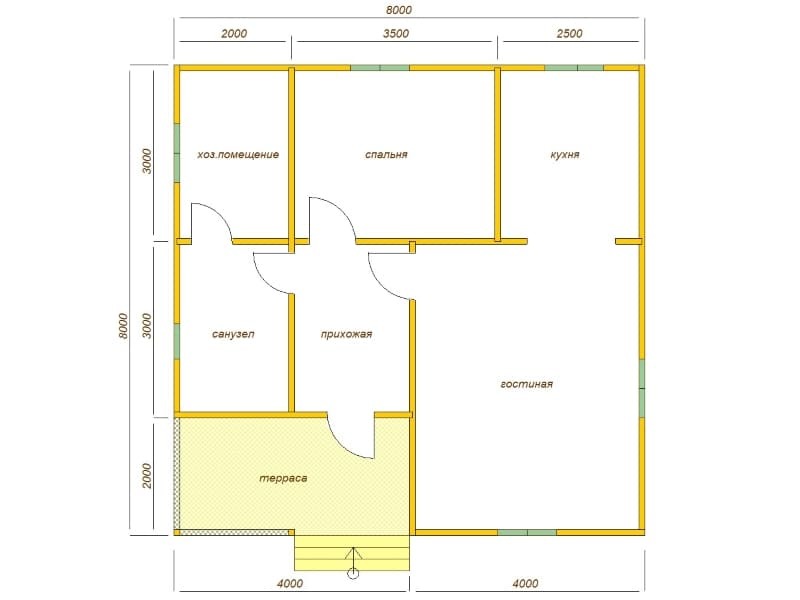
Площадь
64 м 2
Размер дома:
8x8
Этажей:
1
Спален:
1
Санузел:
1
Гараж:
Нет
Баня:
Нет
Терраса:
Да
Панорамные окна:
Нет
Мастер-спальня:
Нет
Планировка
Фасады
О проекте
Компактный дом из бруса площадью 64 м² с жилыми 50 м², где уют и практичность идут рука об руку. Деревянные стены создают атмосферу тепла, а ондулин дополняет природный стиль. Небольшие размеры делают дом удобным для жизни, а продуманная планировка добавляет комфорта. Отличный вариант для семьи с одним ребенком.Характеристики
- Общая площадь: 64 м2
- Жилая площадь: 50 м2
- Количество этажей: 1
- Гараж: нет
- Площадь кровли: 69 м2
- Форма: Квадратные дома
- Тип кровли: Дома с двускатной крышей
- Пристрой: Дома с террасой
- Отделка: Без отделки
- Отделка фасада: Дома с отделкой имитацией бруса
- Размер: 8x8
- Фундамент: Дома с столбчатым фундаментом
Материалы и перечень работ
- Фундамент столбчатый. По 2 блока в тумбе. Блоки бетонные, полнотелые, размером 200*200*400 мм. Тумбы устанавливаются на утрамбованную песчаную подушку. Песок (ПГС) предоставляет заказчик.
- Гидроизоляция – рубероид в два слоя.
- Обвязка – брус естественной влажности (ель/сосна АВ) сечением 150*100 мм По наружному периметру обвязка укладывается в два ряда.
- Лаги пола – доска естественной влажности (ель/сосна АВ) сечением 40*150 мм на ребро, с шагом 600мм.
- Обвязка и лаги обрабатываются защитным невымываемым составом НЕОМИД 430.
- Наружные стены – профилированный брус естественной влажности (ель/сосна АВ) сечением 145*90 мм (толщина стены – 90мм) Профиль «блок-хаус» или прямой.
- Перегородки – профилированный брус естественной влажности(ель/сосна АВ) сечением 145х90 мм, профиль прямой. Врезаются в наружные стены с заглублением до 30мм.
- Межвенцовый утеплитель – джутовое полотно толщиной 6мм.
- Высота кровли в коньке – 1500 мм. Стропила – фермы из доски естественной влажности (ель/сосна АВ) сечением 40*100/150мм. Устанавливаются с шагом 800 мм.
- Обрешётка – доска естественной влажности (ель/сосна АВ) сечением 22*100 мм, с шагом 300 мм. Контробрешётка – рейка 20*40 мм.
- Покрытие кровли – ОНДУЛИН (бордовый, коричневый, зелёный) или оцинкованный профнастил. Подкровельная пароизоляция – НАНОИЗОЛ SD.
- Карнизы и свесы кровли шириной 200мм подшиваются вагонкой (ель/сосна АВ) 17*90 мм.
- Устройство оконных и дверных проёмов с перевязочным венцом, без установки обсадных брусков.
- В стоимость не входит
- В стоимость не входит
- Фундамент столбчатый. По 2 блока в тумбе. Блоки бетонные, полнотелые, размером 200*200*400 мм. Тумбы устанавливаются на утрамбованную песчаную подушку. Песок (ПГС) предоставляет заказчик.
- Гидроизоляция – рубероид в два слоя.
- Обвязка – брус естественной влажности (ель/сосна АВ) сечением 150*100 мм По наружному периметру обвязка укладывается в два ряда.
- Лаги пола – доска естественной влажности (ель/сосна АВ) сечением 40*150 мм на ребро, с шагом 600мм.
- Обвязка и лаги обрабатываются защитным невымываемым составом НЕОМИД 430.
- Наружные стены – профилированный брус естественной влажности (ель/сосна АВ) сечением 145*90 мм (толщина стены – 90мм) Профиль «блок-хаус» или прямой.
- Перегородки – профилированный брус естественной влажности(ель/сосна АВ) сечением 145х90 мм, профиль прямой. Врезаются в наружные стены с заглублением до 30мм.
- Межвенцовый утеплитель – джутовое полотно толщиной 6мм.
- Высота кровли в коньке – 1500 мм. Стропила – фермы из доски естественной влажности (ель/сосна АВ) сечением 40*100/150мм. Устанавливаются с шагом 800 мм.
- Обрешётка – доска естественной влажности (ель/сосна АВ) сечением 22*100 мм, с шагом 300 мм. Контробрешётка – рейка 20*40 мм.
- Покрытие кровли – ОНДУЛИН (бордовый, коричневый, зелёный) или оцинкованный профнастил. Подкровельная пароизоляция – НАНОИЗОЛ SD.
- Карнизы и свесы кровли шириной 200мм подшиваются вагонкой (ель/сосна АВ) 17*90 мм.
- Устройство оконных и дверных проёмов с перевязочным венцом, без установки обсадных брусков.
- В стоимость не входит
- В стоимость не входит
Что еще входит в стоимость:
Отправьте свои контакты и мы расчитаем вам смету
Скорее всего вам подойдут следующие проекты домов:
Проект одноэтажного дома Проект дома из бруса 8х9 - СОКРОВИЩНИЦА
Семья с одним ребенком
Дом подходит для:
Дом подходит для:












