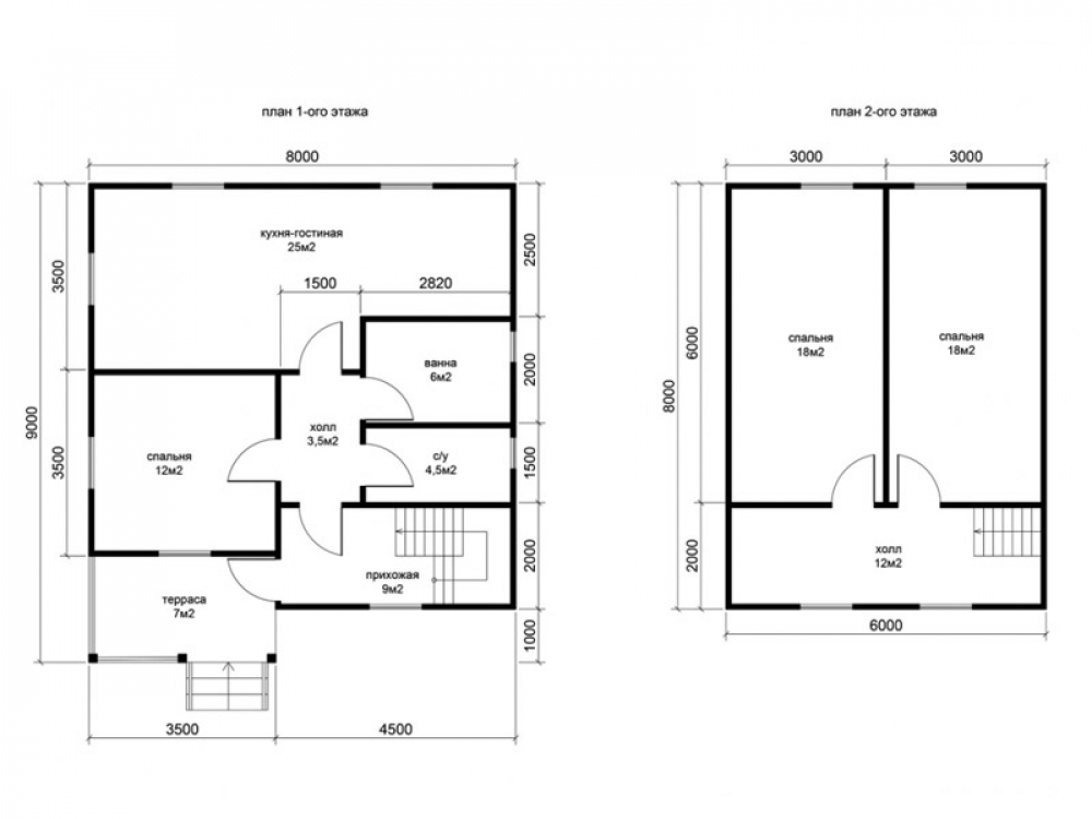
Проект двухэтажного дома Д-68 дом из бруса 8,0х9,0м
Площадь
115 м 2
Размер дома:
8x9
Этажей:
2
Спален:
3
Санузел:
0
Гараж:
Нет
Баня:
Нет
Терраса:
Нет
Панорамные окна:
Нет
Мастер-спальня:
Нет
О проекте
В этом пространстве все элементы гармонично дополняют друг друга.97 м² — когда важно, чтобы было не много, но достаточно. Архитектура выполнена в стиле дома в классическом стиле. Количество спален — 4, делая планировку гибкой. Материал кровли — ондулин, что добавляет зданию индивидуальность.Характеристики
- Общая площадь: 115 м2
- Количество этажей: 2
- Стиль, разновидность: Дома в ином стиле
- Форма: Прямоугольные дома
- Тип кровли: Дома с иной крышей
- Отделка: Без отделки
- Размер: 8x9










