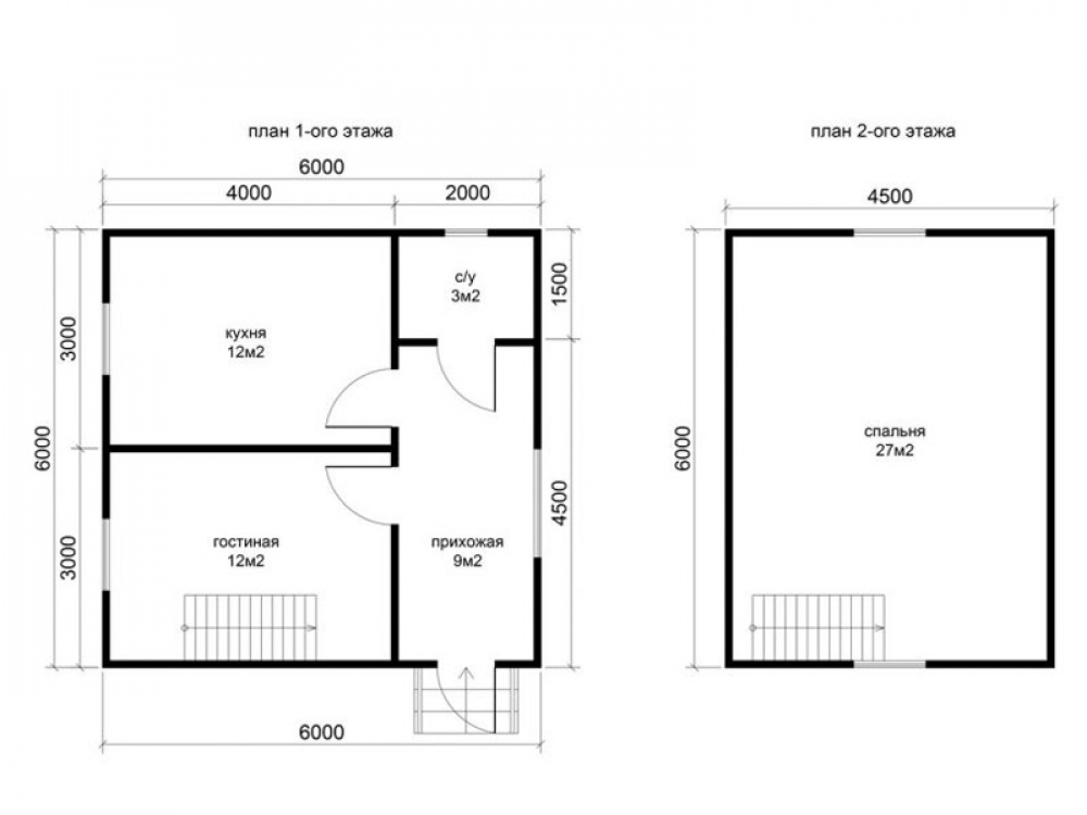
Проект двухэтажного дома Д-7 из бруса 6х6 с двух скатной крышей
Площадь
63 м 2
Размер дома:
6x6
Этажей:
2
Спален:
1
Санузел:
0
Гараж:
Нет
Баня:
Нет
Терраса:
Нет
Панорамные окна:
Нет
Мастер-спальня:
Нет
О проекте
В этом пространстве все элементы подчинены единой концепции удобства.Каждый из 91 м² продуман до мелочей. Крыша из ондулин подчёркивает современный облик дома. Количество спален — 2, делая планировку гибкой. Двухэтажная просторная планировка организует пространство максимально эффективно.Характеристики
- Общая площадь: 63 м2
- Количество этажей: 2
- Стиль, разновидность: Дома в ином стиле
- Форма: Квадратные дома
- Тип кровли: Дома с иной крышей
- Отделка: Без отделки
- Размер: 6x6










