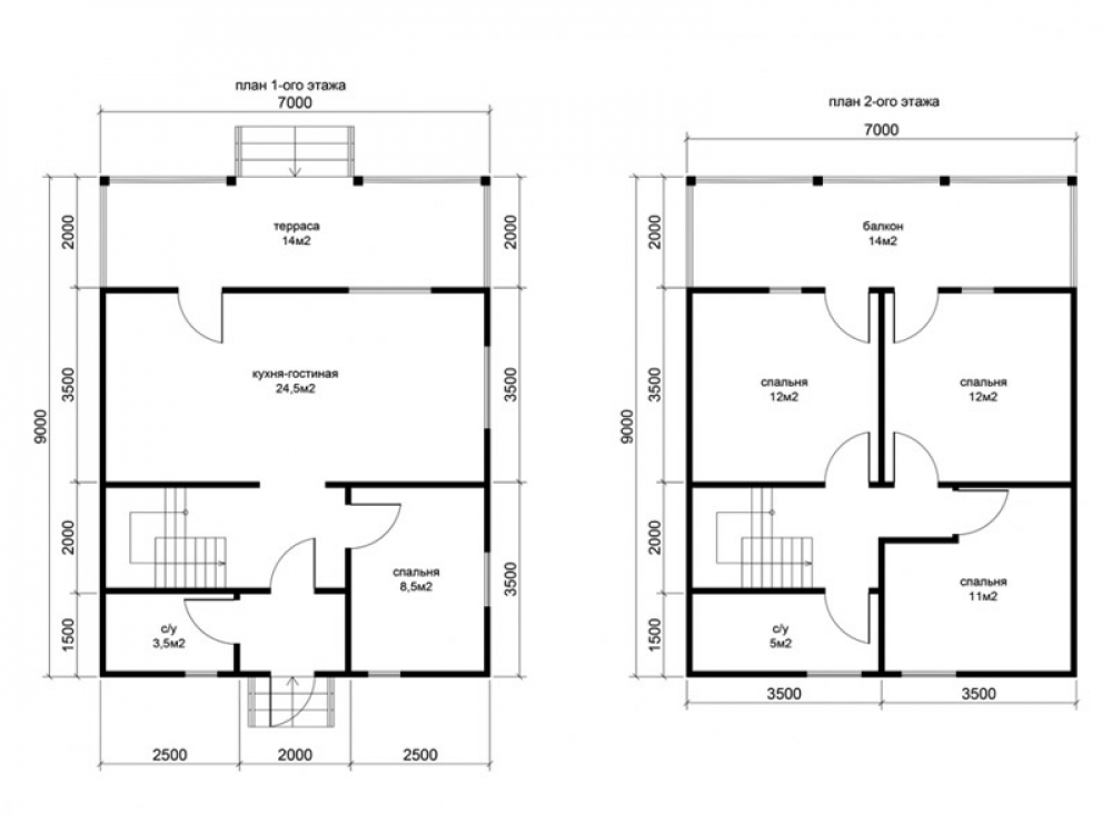
Проект двухэтажного дома Д-72 дом из бруса 7,0х9,0м
Площадь
104 м 2
Размер дома:
7x9
Этажей:
2
Спален:
4
Санузел:
0
Гараж:
Нет
Баня:
Нет
Терраса:
Нет
Панорамные окна:
Нет
Мастер-спальня:
Нет
О проекте
Вам понравится, как естественные материалы создают теплую атмосферу.Свободная планировка в 160 м² вдохновляет на перемены. Конструкция из бруса обеспечивает прочность и долговечность. Это двухэтажная структура, которая разделяет приватные и общественные зоны. Наличие 4 спальни удовлетворит запросы семьи с детьми.Характеристики
- Общая площадь: 104 м2
- Количество этажей: 2
- Стиль, разновидность: Дома в ином стиле
- Форма: Прямоугольные дома
- Тип кровли: Дома с иной крышей
- Отделка: Без отделки
- Размер: 7x9






