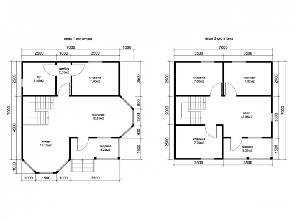
Проект двухэтажного дома Д-76 дом из бруса 7,0х7,0м
Площадь
91 м 2
Размер дома:
7x7
Этажей:
2
Спален:
4
Санузел:
0
Гараж:
Нет
Баня:
Нет
Терраса:
Нет
Панорамные окна:
Нет
Мастер-спальня:
Нет
О проекте
В этом доме вы сразу ощутите гармонию между красотой и функциональностью.Планировка в пределах 72 м² подойдёт многим. Выбор бруса обусловлен его теплоизоляционными свойствами. Количество спален — 2, делая планировку гибкой. Одноэтажная современная планировка организует пространство максимально эффективно.Характеристики
- Общая площадь: 91 м2
- Количество этажей: 2
- Стиль, разновидность: Дома в ином стиле
- Форма: Квадратные дома
- Тип кровли: Дома с иной крышей
- Отделка: Без отделки
- Размер: 7x7










