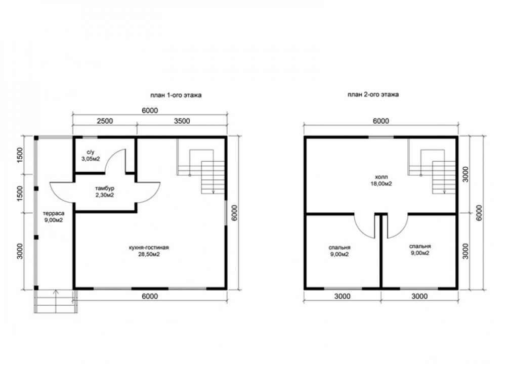
Проект двухэтажного дома Д-79 дом из бруса, размерами 6,0х7,5м
Площадь
78 м 2
Размер дома:
Этажей:
2
Спален:
2
Санузел:
0
Гараж:
Нет
Баня:
Нет
Терраса:
Нет
Панорамные окна:
Нет
Мастер-спальня:
Нет
О проекте
В этом доме приятно проводить как семейные вечера, так и прием гостей. Каждый из 125 м² продуман до мелочей. Дом спроектирован в духе дома в классическом стиле. Крыша из ондулин подчёркивает современный облик дома. Конструкция из бруса обеспечивает прочность и долговечность.Характеристики
- Общая площадь: 78 м2
- Количество этажей: 2
- Стиль, разновидность: Дома в ином стиле
- Форма: Прямоугольные дома
- Тип кровли: Дома с иной крышей
- Отделка: Без отделки







