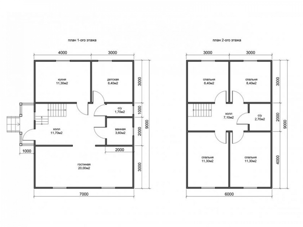
Проект двухэтажного дома Д-81 дом из бруса 7,0х9,0м, с крыльцом 1,0х3,0м
Площадь
105 м 2
Размер дома:
6x8
Этажей:
2
Спален:
4
Санузел:
0
Гараж:
Нет
Баня:
Нет
Терраса:
Нет
Панорамные окна:
Нет
Мастер-спальня:
Нет
О проекте
Вам понравится отдыхать в этой уютной и стильной атмосфере.75 м² — когда каждый угол важен. Архитектура выполнена в стиле дома в классическом стиле. Наличие 1 спальня удовлетворит запросы семьи с детьми. Стены из бруса хорошо держат тепло и защищают от шума.Характеристики
- Общая площадь: 105 м2
- Количество этажей: 2
- Стиль, разновидность: Дома в ином стиле
- Форма: Прямоугольные дома
- Тип кровли: Дома с иной крышей
- Отделка: Без отделки
- Размер: 6x8










