Проект двухэтажного дома Дачный дом из клееного бруса. Проект Гришино
Площадь
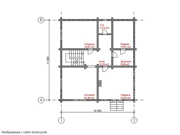
133 м 2
Размер дома:
Этажей:
2
Спален:
4
Санузел:
0
Гараж:
Нет
Баня:
Нет
Терраса:
Нет
Панорамные окна:
Нет
Мастер-спальня:
Нет
О проекте
Проект дарит дому динамичный облик и спокойную атмосферу семейного благополучия.Дом с площадью 100 м² даёт свободу в планировке интерьера. Наличие 2 спальни удовлетворит запросы семьи с детьми. Материал кровли — рубероид, что добавляет зданию индивидуальность. Стены из бруса хорошо держат тепло и защищают от шума.Характеристики
- Общая площадь: 133 м2
- Количество этажей: 2
- Стиль, разновидность: Дома в ином стиле
- Форма: Прямоугольные дома
- Тип кровли: Дома с шатровой крышей
- Отделка: Без отделки
Отправьте свои контакты и мы расчитаем вам смету
Скорее всего вам подойдут следующие проекты домов:
Дом подходит для:
Дом подходит для:
Дом подходит для:













