Проект двухэтажного дома ДБ-040
Площадь
98 м 2
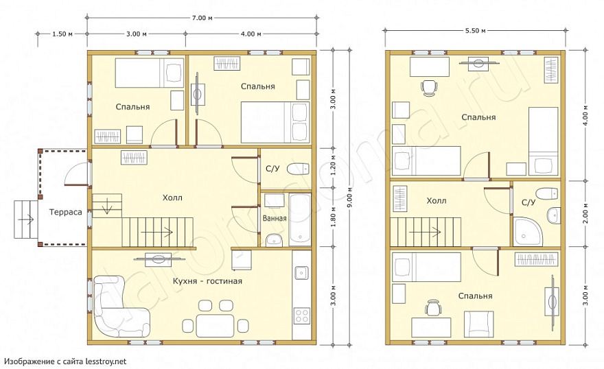
Размер дома:
Этажей:
2
Спален:
3
Санузел:
0
Гараж:
Нет
Баня:
Нет
Терраса:
Нет
Панорамные окна:
Нет
Мастер-спальня:
Нет
О проекте
Дом, в котором легко дышится и думается.Комфортные 192 м² — и ни больше, ни меньше. Архитектура выполнена в стиле дома в классическом стиле. Наличие 2 спальни удовлетворит запросы семьи с детьми. Материал кровли — рубероид, что добавляет зданию индивидуальность.Характеристики
- Общая площадь: 98 м2
- Количество этажей: 2
- Тип кровли: Дома с многощипцовой крышей
- Отделка: Без отделки
Отправьте свои контакты и мы расчитаем вам смету
Скорее всего вам подойдут следующие проекты домов:
Дом подходит для:
Дом подходит для:
Дом подходит для:














