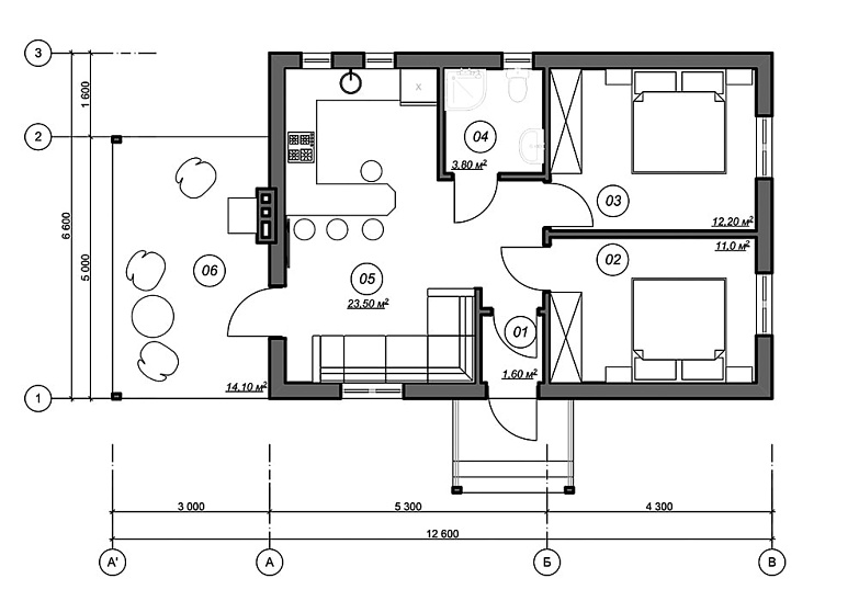
Проект одноэтажного дома ДБ-07
Площадь
63 м 2
Размер дома:
9x12
Этажей:
1
Спален:
2
Санузел:
0
Гараж:
Нет
Баня:
Нет
Терраса:
Нет
Панорамные окна:
Нет
Мастер-спальня:
Нет
О проекте
Уютный дом площадью 63 м² из строганного бруса сочетает в себе простоту и функциональность. Две спальни и один этаж оптимально используют пространство. Теплые стены из натурального дерева создают атмосферу покоя. Это практичное и стильное решение для загородного отдыха.Характеристики
- Общая площадь: 63 м2
- Количество этажей: 1
- Стиль, разновидность: Дома в ином стиле
- Форма: Прямоугольные дома
- Тип кровли: Дома с четырехскатной крышей (вальмовой)
- Отделка: Без отделки
- Размер: 9x12
Отправьте свои контакты и мы расчитаем вам смету
Скорее всего вам подойдут следующие проекты домов:
Дом подходит для:
Дом подходит для:
Дом подходит для:













