Ваш город:

Проект двухэтажного дома Деревянный дом Дьяконово2

Площадь: 160 м2
Размер: 95x138
Дом подходит для:
Семья с одним ребенком
Этажей:
2
Стены:
Кровля:
Металлочерепица
Цена:
Оставить заявку
Площадь
160 м 2
Размер дома:
95x138
Этажей:
2
Спален:
0
Санузел:
0
Гараж:
Нет
Баня:
Нет
Терраса:
Нет
Панорамные окна:
Нет
Мастер-спальня:
Нет
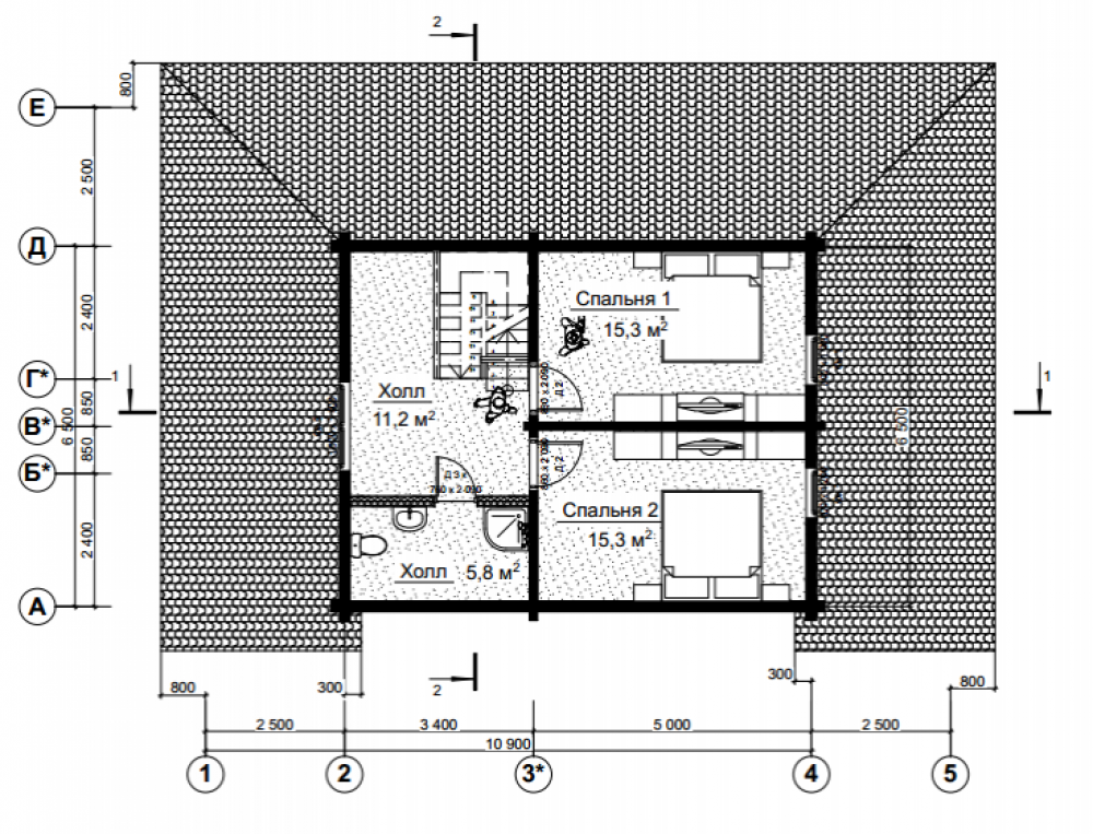
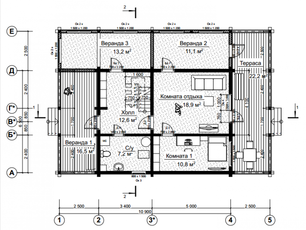
О проекте
Дом, в котором хочется остаться навсегда. Жить удобно на 160 м² — здесь всё на своих местах. Дом спроектирован в духе дома в классическом стиле. Конструкция из Брус обеспечивает прочность и долговечность. Двухэтажная грамотная планировка делает зонирование более логичным.

Характеристики
  • Общая площадь: 160 м2
  • Количество этажей: 2
  • Стиль, разновидность: Дома в ином стиле
  • Тип кровли: Дома с иной крышей
  • Отделка: Без отделки
  • Размер: 95x138
Отправьте свои контакты и мы расчитаем вам смету
Прикрепить документ
Скорее всего вам подойдут следующие проекты домов:
Добавить к сравнению
Добавить в избранное
Изображение
Изображение
Изображение
Изображение
Изображение
Дом подходит для:
Семья с одним ребенком
Добавить к сравнению
Добавить в избранное
Изображение
Дом подходит для:
Семья с одним ребенком
Добавить к сравнению
Добавить в избранное
Изображение
Изображение
Изображение
Изображение
Изображение
Дом подходит для:
Семья с двумя детьми