Проект одноэтажного дома ДК-383
Дом подходит для:
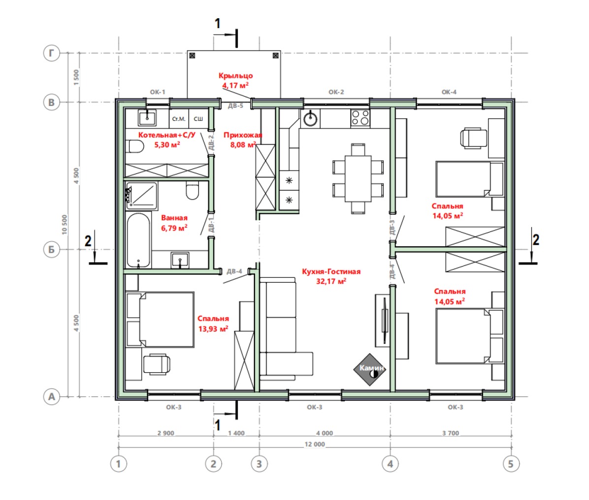
Площадь
112 м 2
Размер дома:
9х12
Этажей:
1
Спален:
3
Санузел:
2
Гараж:
Нет
Баня:
Нет
Терраса:
Да
Панорамные окна:
Нет
Мастер-спальня:
Нет
Планировка
Характеристики
- Общая площадь: 112 м2
- Жилая площадь: 84 м2
- Количество этажей: 1
- Гараж: нет
- Площадь кровли: 122 м2
- Форма: Квадратные дома
- Тип кровли: Дома с двускатной крышей
- Пристрой: Дома с верандой
- Отделка: С черновой отделкой
- Фундамент: Дома со свайным фундаментом
Материалы и перечень работ
- Свайно-винтовой фундамент D108/2500
- Обвязка брусом 150х200/150х150 мм (согласно проекта);
- Лаги пола из доски 50х200мм;
- Гидроветрозащитная мембрана с обрешеткой из доски 25х100 мм;
- Утеплитель Knauf — 200 мм;
- Каркас стен из доски 50х150мм или 50х200 мм (согласно проекту);
- Стропила из доски 50х200 мм или 50х150 мм (для малых строений);
- Обрешетка из бруска 50х50 мм;
- Подкровельная мембрана;
- Контробрешетка из доски 25х100 мм;
- Покрытие кровли: металлочерепица 0,45 PE (цвет на выбор).
- Входная металлическая дверь Гарда Муар Царга;
- Окна ПВХ 70 мм профиль с двухкамерным стеклопакетом и антимоскитными сетками;
- Подоконники ПВХ;
- Отливы.
- В стоимость не входит
- Внешняя отделка (на выбор): Имитация бруса AB;
- Фасадная плитка Hauberk (за небольшую доплату);
- Свайно-винтовой фундамент D108/2500
- Обвязка брусом 150х200/150х150 мм (согласно проекта);
- Лаги пола из доски 50х200мм;
- Гидроветрозащитная мембрана с обрешеткой из доски 25х100 мм;
- Утеплитель Knauf — 200 мм;
- Каркас стен из доски 50х150мм или 50х200 мм (согласно проекту);
- Стропила из доски 50х200 мм или 50х150 мм (для малых строений);
- Обрешетка из бруска 50х50 мм;
- Подкровельная мембрана;
- Контробрешетка из доски 25х100 мм;
- Покрытие кровли: металлочерепица 0,45 PE (цвет на выбор).
- Входная металлическая дверь Гарда Муар Царга;
- Окна ПВХ 70 мм профиль с двухкамерным стеклопакетом и антимоскитными сетками;
- Подоконники ПВХ;
- Отливы.
- В стоимость не входит
- Внешняя отделка (на выбор): Имитация бруса AB;
- Фасадная плитка Hauberk (за небольшую доплату);
Что еще входит в стоимость:
Отправьте свои контакты и мы расчитаем вам смету
Скорее всего вам подойдут следующие проекты домов:
Дом подходит для:
Дом подходит для:
Дом подходит для:











